3 bedroom 
Terraced House
To Rent

Birch Close, Cambridge

Per Month
£1,700
pcm
Birch Close
Cambridge
CB4 1XN
Property Type
Terraced House
Bedrooms
x3
Reception Rooms
x1
Bathrooms
x1
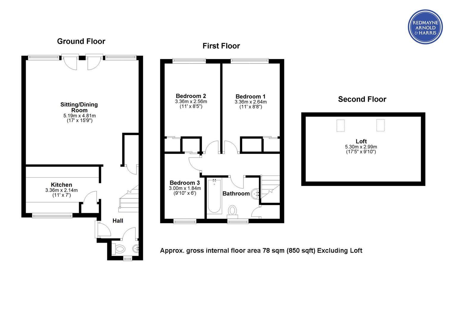
Size
991 sq. ft.
Property Details
Floorplans
Location
EPCs

Located in the sought-after Birch Close, Cambridge, this beautifully refurbished terraced house offers modern living in a peaceful setting. Spanning around 990 sq. ft., the property features a spacious open-plan living and dining area with a contemporary kitchen, perfect for entertaining or relaxing with family.

Upstairs are three well-proportioned bedrooms and a stylish family bathroom, providing comfort and practicality for everyday living. The loft offers additional storage or potential for a study space.

Outside, the private garden is perfect for enjoying sunny afternoons, while a private garage adds further convenience.

The home benefits from easy access to Cambridge North train station and falls within the catchment areas for both Milton Road Primary School and Chesterton Community College, making it ideal for families seeking excellent educational options.

Built in 1966 and recently updated, this charming home combines character with modern comfort — perfectly suited for families or professionals seeking a quality rental in a desirable Cambridge location.

Council Tax Band: C
EPC Rating: D
Minimum 12 Month Tenancy
Deposit: £1960
Holding Deposit: £390

Key Features
    Property Description
    Parking

    There is on street and garage parking available

    White Goods

    Fridge, washing machine and dishwasher. Microwave if tenants want the one that is at the property

    Utilities, Bills and Payments

    All utilities to be arranged and paid for by Tenants, including but not limited to Council Tax, Gas, Electricity, Water, Broadband, Television and TV Licence.

    Supply

    Electricity Supply: Mains
    Water Supply:Mains
    Heating Supply: Mains gas radiators
    Sewerage Supply: Mains

    Broadband

    Fibre to premises/Ultrafast (FTTP) AND OR Fibre to cabinet/Superfast (FTTC) AND OR Standard/Copper (ADSL) broadband is available at the property, please refer to Ofcom to check for supply coverage and speeds.

    Mobile Coverage

    Mobile provider EE, Three, Vodaphone and O2 are likely to have good/limited coverage for voice and data. Please refer to Ofcom for guidance on mobile availability in the area.

    Read more
    Birch Close, Cambridge
    15 Birch Close
    Cambridge
    CB4 1XN
    Birch Close, Cambridge
    RAH Newsletter

    Stay 

    updated

    Sign up to our newsletter to receive the latest property and industry news direct to your inbox.
    Subscribe
    envelopephone-handsetmap-markermagnifierarrow-downarrow-right linkedin facebook pinterest youtube rss twitter instagram facebook-blank rss-blank linkedin-blank pinterest youtube twitter instagram