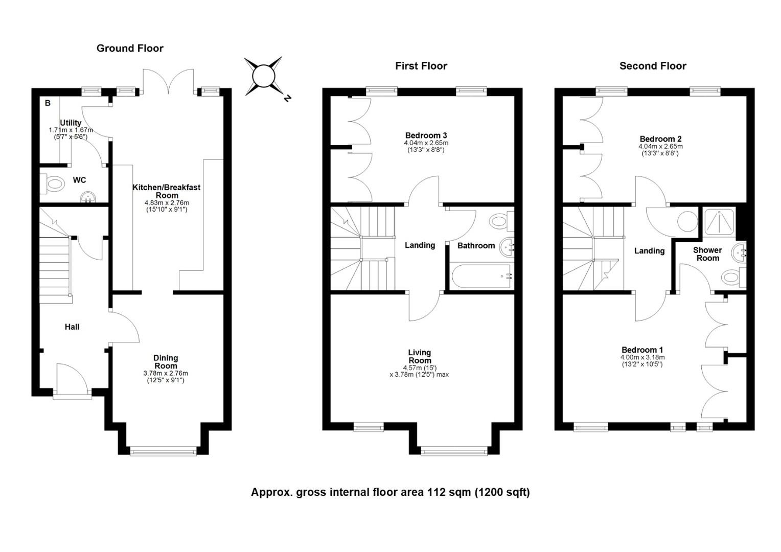
Constructed in 2001, this delightful home measures 1200 Sqft/112 Sqm and provides generous levels of accommodation over three floors. To the ground floor the property comprises of a spacious entrance hall with stairs leading to the first floor and storage beneath. Completing the ground floor is a formal dining room with a box bay window, a kitchen breakfast room with doors opening into the rear garden, a utility room which also houses the boiler and a separate WC adjoining. To the first floor you will find a spacious living room which can also be used as a fourth bedroom, bedroom three with built-in wardrobes and a separate family bathroom with a panelled bath with shower over, a low-level WC and a pedestal sink unit. To the second floor are two further double bedrooms each with fitted wardrobes and includes a master bedroom suite with an en-suite shower room.
Externally – To the front are two allocated parking spaces. Several feet from the front door is a bus stop providing regular public transport links to the Historic Centre of Cambridge. The rear garden is fully enclosed and split over three levels with a decking area off the kitchen/breakfast room and a mixture of astro turf and gravel to the further two levels below. To the rear of the garden is a timber built shed and gated access which leads to a nearby park and one of many communal green spaces located within Great Cambourne.
Cambourne can be found off the A428 giving excellent access to major road routes including the M11, A14 & A1. There is a wealth of amenities & facilities, there are four Primary Schools which include Monkfield Park, Hardwick & Cambourne Community Primary School, The Vines & Jeavons Wood, which all filter into the secondary school Cambourne Village College rated Outstanding (OFSTED 2015).
Freehold
Mains services connected include: gas, electricity, water and mains drainage.
South Cambridgeshire District Council
Council tax band -D
Unless specifically mentioned in these particulars all fixtures and fittings are expressly excluded from the sale of the freehold interest.
Strictly by appointment through the vendor’s sole agents, Redmayne Arnold and Harris
There is a yearly service charge to First Port for the upkeep of the surrounding areas - The service charge is £680.72 per year for 2025 and is paid monthly at £56.72 per month.



