This attractive 1920’s semi-detached family home provides extensive and flexible ground floor accommodation, which includes a self-contained internal annex wing and impressive, open plan kitchen/dining/family room.
The property occupies a large established plot offering beautiful gardens and driveway parking on Cavendish Avenue, within easy reach of outstanding schools, Addenbrooke's Hospital/Biomedical Campus and Cambridge Station.
The property is set back from the road and is approached via established frontage, which provides a high degree of screening and ample off-street parking and bicycle storage.
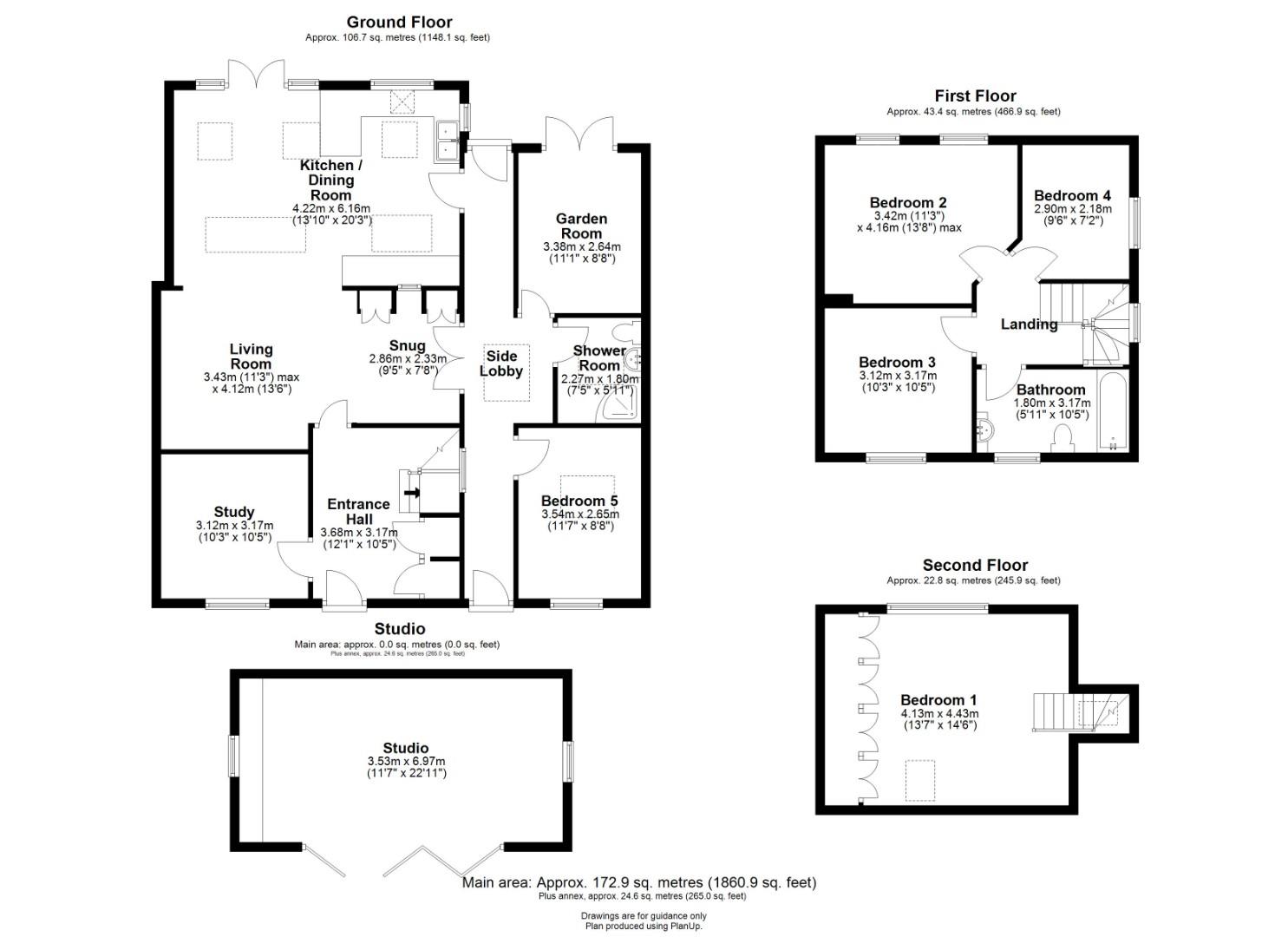
The ground floor accommodation measures an impressive 1148 sqft and comprises a large reception hall with deep storage cupboards, a private study overlooking the front garden and an extensive, open plan principal reception room, which connects to a separate wing. A broad sitting room combines an open living area with a woodburning stove and a cosy snug with bespoke cabinetry and book shelving. A stunning kitchen/dining area with a high vaulted ceiling and extensive glazing provides complete views of and access to the garden. A traditional style, well-equipped kitchen provides a range of low-level cabinetry with solid wood countertops and space for a range of freestanding appliances. An internal annex wing provides a double bedroom, shower room and a garden room. A side lobby connecting the main accommodation from the annex wing provides access to the front and rear gardens.
Upstairs, a first-floor landing leads to three bedrooms, a family bathroom suite and staircase leading to the second-floor bedroom suite.
Outside, a large, fully enclosed and beautifully designed rear garden benefits from a south-facing aspect and a separate home studio. An impressive, decked terrace adjacent to the house, overlooks a wildlife pond and continues to provide an extensive seating area. Attractive trees and mature shrubs border a well-maintained lawn which leads to a large and well-constructed home studio with power and bespoke cabinetry. There is a generous storage area hidden behind the studio.
Cavendish Avenue is located just off Hills Road, conveniently well placed for the city centre, railway station and M11. Local shopping, churches and the public library are close by as is Morley Memorial Primary School. Other schools, of the state and independent sectors are also to be found on the south side of the city along with Long Road and Hills Road Sixth form colleges. It is also in easy reach of Addenbrooke's Hospital and Cherry Hinton Hall where there is a playground and park for children.
Freehold
Main services connected include: water, electricity, gas and mains drainage.
Cambridge City Council.
Council Tax Band - E
Unless specifically mentioned in these particulars, all fixtures and fittings are expressly excluded from the sale of the freehold interest.
Strictly by appointment through the vendor’s sole agents, Redmayne Arnold and Harris.



