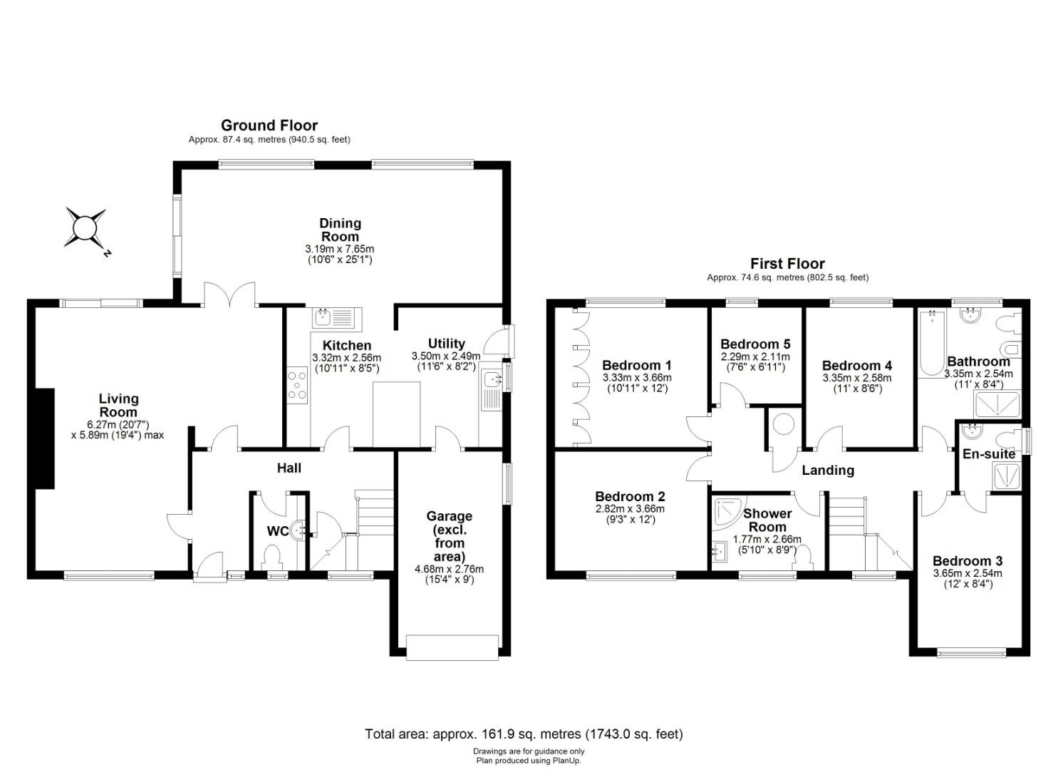
With living accommodation measuring approximately 161SQM/1743SQFT this detached five-bedroom home is ideal for young families who are looking to take that next step on the property ladder.
To the ground floor, the property comprises of a spacious entrance hall with a wraparound staircase with storage below and a WC adjoining. Off the hallway is a light and airy ‘L’ shaped living room which benefits from double aspect window and sliding door. Through the living room is a large family/dining room which is in the extended part of the house and measures 25ft in length.
The kitchen/utility area has side access to the rear garden and access into the integral garage which is used currently as a workshop. The kitchen/utility area has storage at both eye level and base level and provides ample space for a large range style oven/hob, a fridge/freezer and provides space for a washing machine and tumble dryer in the utility area.
To the first floor, the property comprises of four double bedrooms, three bathrooms and a single bedroom which could be used as a home office. Off bedroom three is a en-suite shower room and bedroom one has fitted wardrobes. The family bathroom benefits from a panelled bath, single enclosed shower, low level WC, pedestal basin and a bidet. The shower room has a fully tiled, single enclosed shower, a low-level WC and a wall mounted sink with vanity unit below.
Externally – To the front of the property is a mature garden, laid to lawn and with an array of herbaceous borders. The front of the property further benefits from driveway parking for several vehicles along a concrete and gravel laid driveway which in turn leads onto the integral garage.
The rear garden is fully enclosed, laid predominantly to lawn and backs onto a neighbouring paddock. It has a patio area off the Living room, via sliding doors and has a vast array of shrubs, flowers, and plants along the borders as well as a raised fishpond.
Cottenham is a large & thriving village located approximately 6 miles north of Cambridge with many excellent facilities including a wide variety of local shops. The village benefits from a Co-operative store, Costcutter, Post Office, greengrocer, hairdresser, car garages and pharmacy. In addition there are two GP surgeries, a dental surgery, library and thriving community centre. Cottenham boasts four public houses and various restaurants including an award-winning Indian restaurant.
Schooling is available nearby at Cottenham Primary School and Cottenham Village College. Cambridge is easily accessible with cycle paths back to the city and the Science/Business parks, a regular Citi 8 bus service and the A14 providing access to the M11 & A1 commuter roads. The Guided Busway can be accessed via the nearby villages of Histon and Oakington.
All mains services are connected.
South Cambridgeshire District Council
Tax band - F
Unless specifically mentioned in these particulars all fixtures and fittings are expressly excluded from the sale of the freehold interest.
Strictly by appointment through the vendor’s sole agents, Redmayne Arnold and Harris



