3 bedroom 
Detached House
To Rent

Fen Road, Cambridge

£2,185
pcm
Fen Road
Cambridge
CB4 1TX
Property Type
Detached House
Bedrooms
x3
Reception Rooms
x1
Bathrooms
x2
Property Details
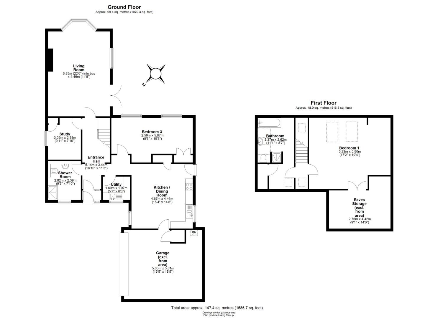
Floorplans
Location
EPCs

Situated along the picturesque Fen Road in Cambridge, this exceptional detached chalet offers a rare opportunity for riverside living. Enjoying stunning views across the river and a peaceful waterside setting, the property is also conveniently located close to the Cambridge Science Park and Cambridge North station, making it ideal for professionals seeking excellent transport links and easy access to major employers.

The property features a separate kitchen and dining room, thoughtfully arranged to create a practical and sociable layout, alongside a spacious living room that serves as the perfect place to relax and take in the surrounding views.

There are three well-proportioned bedrooms, with two located on the ground floor and an impressive master bedroom situated on the first floor. The principal suite benefits from its own dressing room and private bathroom, creating a comfortable and private retreat.

Externally, the property further benefits from a double garage, offering excellent storage or secure parking space.

With its generous living space, flexible layout, and idyllic riverside location, this detached property is ideal for renters looking to enjoy both tranquillity and convenient access to Cambridge.

Council Tax: F
EPC Rating: C
Minimum 12 Month Agreement
Deposit: £2520
Holding Deposit: £390

Key Features
    Property Description
    Parking

    Private driveway.

    White Goods

    washing machine, dishwasher, fridge, freezer, gas cooker.

    Utilities, Bills & Payments:

    All utilities to be arranged and paid for by Tenants, including but not limited to Council Tax, Gas, Electricity, Water, Broadband, Television and TV Licence.

    Supply

    Electricity: Mains
    Water: Mains
    Heating: Gas Mains
    Sewerage: Mains

    Broadband

    Standard/Copper (ADSL) broadband is available at the property. Please refer to Ofcom to check for supply coverage and speeds.

    Mobile Coverage

    Mobile provider EE, Three, O2 and Vodafone are likely to have good coverage for voice and data. Please refer to Ofcom for guidance on mobile availability in the area.

    Read more
    Fen Road, Cambridge
    22 Fen Road
    Cambridge
    CB4 1TX
    Fen Road, Cambridge
    RAH Newsletter

    Stay 

    updated

    Sign up to our newsletter to receive the latest property and industry news direct to your inbox.
    Subscribe
    envelopephone-handsetmap-markermagnifierarrow-downarrow-right linkedin facebook pinterest youtube rss twitter instagram facebook-blank rss-blank linkedin-blank pinterest youtube twitter instagram