116 Milton Road is an impressive semi-detached Edwardian house providing elegant and well-proportioned rooms with tall ceilings, fine attractive features and a high degree of natural light.
The property features large bay windows to all three elevations, and a rear single-storey extension was added in 2007 to create an open plan kitchen/dining/family room.
Located on the corner of Milton Road and George Street, this fine period home is set within established gardens, which offer a high degree of privacy and access to a generous parking area with a carport, potential studio and a greenhouse, via automatic double gates from George Street.
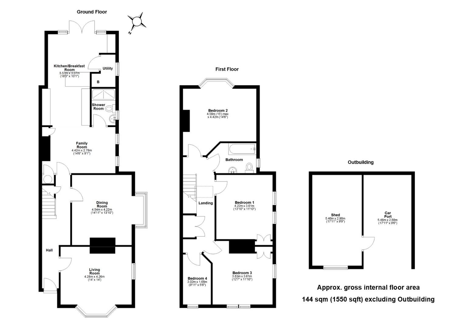
Beautifully presented accommodation with a superior finish extends to 1550 sqft in total and is arranged over two light-filled floors.
The ground floor accommodation comprises a reception hall with stained-glass entrance door and restored stripped timber flooring, which continues through to all three reception areas. A dual aspect sitting room with large bay window overlooking the front aspect has a beautiful working open fireplace and custom-made, recess book shelving. A stunning formal dining room with a large bay window overlooking private side gardens has a working fireplace, picture rails and original coving. An impressive open plan kitchen/dining/family room provides a comfortable sitting area with a feature fireplace, a well-equipped, bespoke kitchen and a dining area with Velux skylights and French doors opening to a step-down courtyard area. A utility room and a stylish and recently refitted shower room complete this level.
Upstairs, a bright and airy landing area with feature stained-glass skylight leads to a luxurious family bathroom suite and four immaculately presented bedrooms retaining some fine period features.
Outside, the front and side gardens are well-screened from the street and are predominantly laid to lawn with borders. The rear courtyard garden is laid to paving and provides access to a large, gravelled parking area, a carport and a large timber storage shed, which could potentially be made into a studio. Access to this space is via George Street through electronically operated double gates.
There was minor subsidence caused by a tree adjacent to side of property. This tree was removed and repairs were carried out to remediate the situation.
The property sits on the southern end of Milton Road and is conveniently situated on the north side of the city lying about 1.5 miles from the city centre itself and about 1.25 miles south of both Cambridge Science Park and access to the A14 and Cambridge North Railway station. Local shopping facilities are available at the Arbury Road/Milton Road junction with primary schooling at Milton Road and secondary schooling at Chesterton Community College. The river, Midsummer Common, city centre and many of the other facilities offered by the university can be approached on foot or by bicycle.
Freehold
Main services connected include: water, electricity, gas and mains drainage.
Cambridge City Council.
Council Tax Band - F
Unless specifically mentioned in these particulars, all fixtures and fittings are expressly excluded from the sale of the freehold interest.
Strictly by appointment through the vendor’s sole agents, Redmayne Arnold and Harris.



