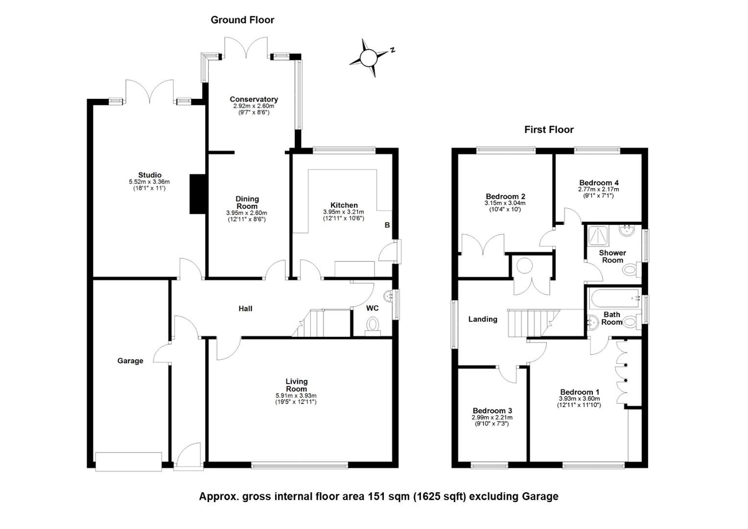
The property occupies a pleasant cul-de-sac position just a short walk to the primary school, recreation ground and village church. The current owners have enlarged the property extending it to approximately 1625 Sqft with off road parking and garage. The accommodation comprises a generous entrance porch to a welcoming reception hall with stairs to first floor accommodation, cloakroom/WC just off. There are three reception rooms including a sitting/dining/family room with wood burning stove and patio doors to the garden. There is a conservatory extension off the dining room which enjoys panoramic views over the garden and wooded area beyond. The kitchen is fitted with base level and wall mounted storage cupboards with inset ceramic one and a half sink unit with mixer tap and drainer, four ring induction hob, double oven, extractor, pull out larder, integrated under counter fridge and space for a dishwasher, washing machine plus a free standing oil fired central heating boiler. There is fibre to the property ( FTTP)
Upstairs, off the galleried landing are four bedrooms with an en-suite to the master bedroom and a re-fitted family shower room.
Outside, the property is set back from the road and is laid mainly to lawn with a driveway providing parking for two cars and leading to the garage with up and over door, power and light connected. A side access leads to the rear garden which is laid mainly to lawn with well stocked flower and shrub borders and beds, a selection of trees and bushes, wildlife pond, timber shed and all backs onto a pleasant wooded area and fields beyond.
Haslingfield is a much-admired village lying just 6 miles southwest of Cambridge, surrounded by rolling countryside over which there are many fine walks (including one to nearby Grantchester). The village is well served by a store/shop, café, village hall and a post office. There is a very well-regarded village primary school and the highly regarded Comberton Village College, being top of the league tables for a number of years, is just a few miles away. Rail links to London are available from Cambridge as well as nearby Foxton and Shepreth stations and the M11 motorway (junctions 11 and 12) are within a few minutes’ drive. There is also a regular bus service to Cambridge.
Freehold
Mains services connected include: electricity, water and mains drainage. Oil fired central heating
South Cambridgeshire District Council
Council tax band - F
Unless specifically mentioned in these particulars all fixtures and fittings are expressly excluded from the sale of the freehold interest.
Strictly by appointment through the vendor’s sole agents, Redmayne Arnold and Harris



