Fox Cottage was, at one time, two dwellings circa 17th century and was altered and extended in the 1980's. The property is timber framed with renewed brick base with rendered elevations to a T-plan. The current owners have greatly improved the property with a programme of sympathetic refurbishment, taking great care to preserve much of the original character and charm and historically planning permission was granted for a generous extension. The property further boasts ample parking, detached double garage and mature and private gardens and grounds extending to over one acre.
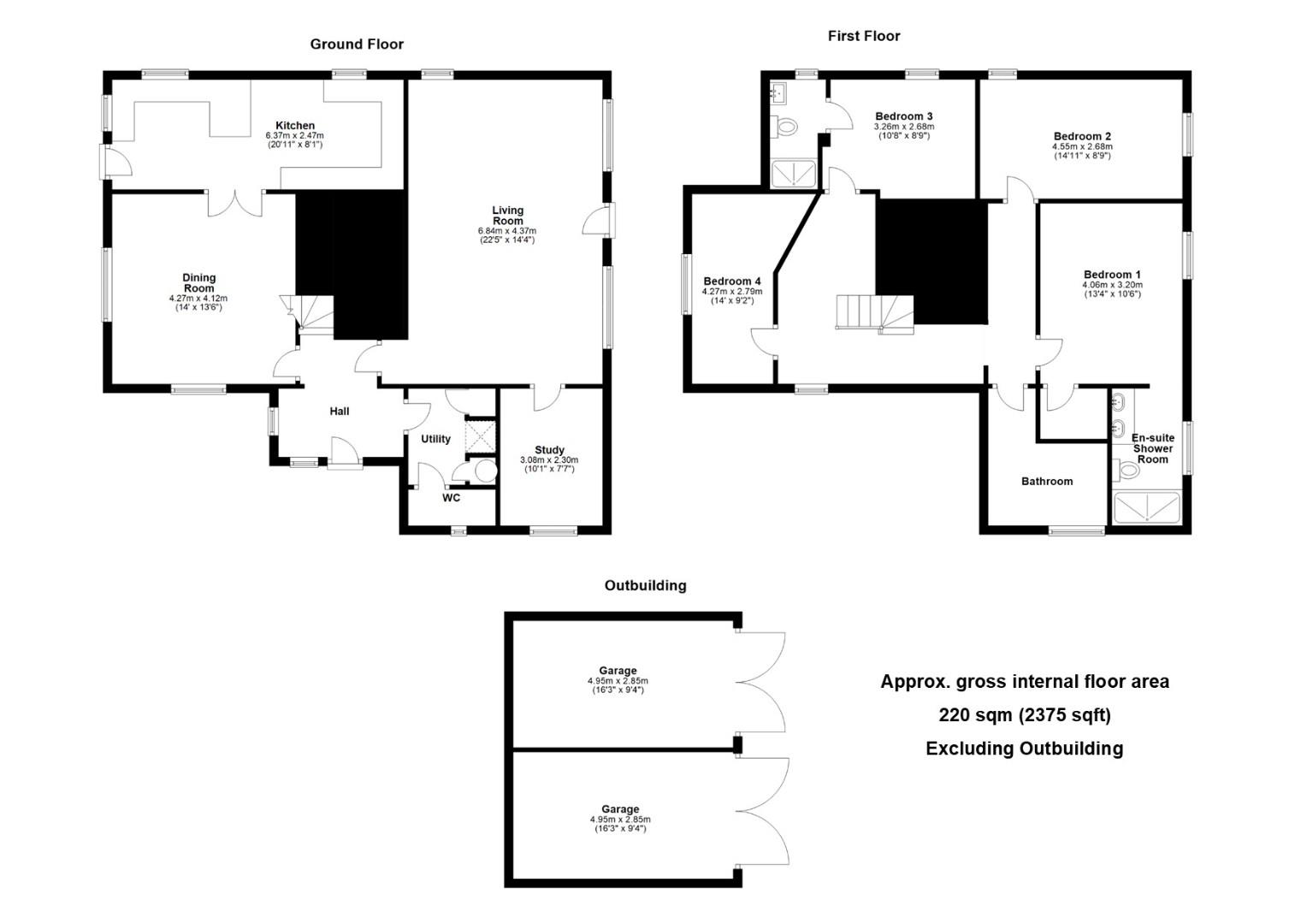
The accommodation comprises a welcoming reception hall with oak flooring and stairs to first floor accommodation with a cloakroom/laundry room just off. There are two principle reception rooms, both with inglenook fireplaces incorporating wood burning stoves, exposed timbers and oak flooring. Just off the main reception room is a office, again with exposed timbers. oak flooring and views over the front garden. The kitchen/breakfast room is fitted with modern cabinetry and a range of integrated appliances plus a range style cooker.
Upstairs, off the split level landing, which boasts an attractive exposed brick chimney breast, are four double bedrooms. The master bedroom and guest bedroom both boast refitted en suite shower rooms. the other two bedrooms are served by a luxury family bathroom.
Outside there is a generous driveway which would accommodate multiple vehicles. The detached double garage has two double doors, power and light connected in both garages with an adjoining brick built garden store/potting shed. The gardens extend on all sides and are mainly laid to lawn with well stocked flower and shrub borders and beds, a paved patio, a wide and varied selection of mature specimen and fruit bearing trees and all enjoy wonderful panoramic views of undulating countryside.
Newsells Village is a delightful hamlet of just nine mainly period properties dating from around 1700 and widely dispersed in a stunning parkland setting. The park and surrounding countryside is home to an amazing array of wild life, including deer, badgers, all kinds of owls and an abundance of other birds. The hamlet forms part of the historic village of Barkway in the north east of Hertfordshire, close to the borders with Cambridgeshire and Essex.
The nearest mainline railway station is just over 4 miles away in the neighbouring town of Royston on the Cambridge to London Kings Cross line. The fastest commute times by train are 38 minutes to Kings Cross (the quickest return journey takes only 34 minutes) and 17 minutes to Cambridge. For those preferring access to London Liverpool Street, the station at Audley End is about 11 miles to the east. For travel by road, the A10 and A505 are within easy reach, the latter providing speedy access to the M11 and A1(M).
Freehold
Mains services connected include: electricity, water and mains drainage. Oil fired central heating
North Hertfordshire District Council
Council tax band-G
Unless specifically mentioned in these particulars all fixtures and fittings are expressly excluded from the sale of the freehold interest.
Strictly by appointment through the vendor’s sole agents, Redmayne Arnold and Harris
Approved planning permission exists for a rear extension, loft conversion, garage extension & loft conversion and internal alterations to the house. More information is available on request.



