This superb mid terrace, of just three, was constructed in 2014 of timber frame with black weather boarding beneath a pitch tile roof and extends to approximately 1275 Sqft. The property forms part of a beautiful and select scheme of similar barn style properties and boasts a tranquil cul de sac setting and just a short walk from the village amenities and main line train station.
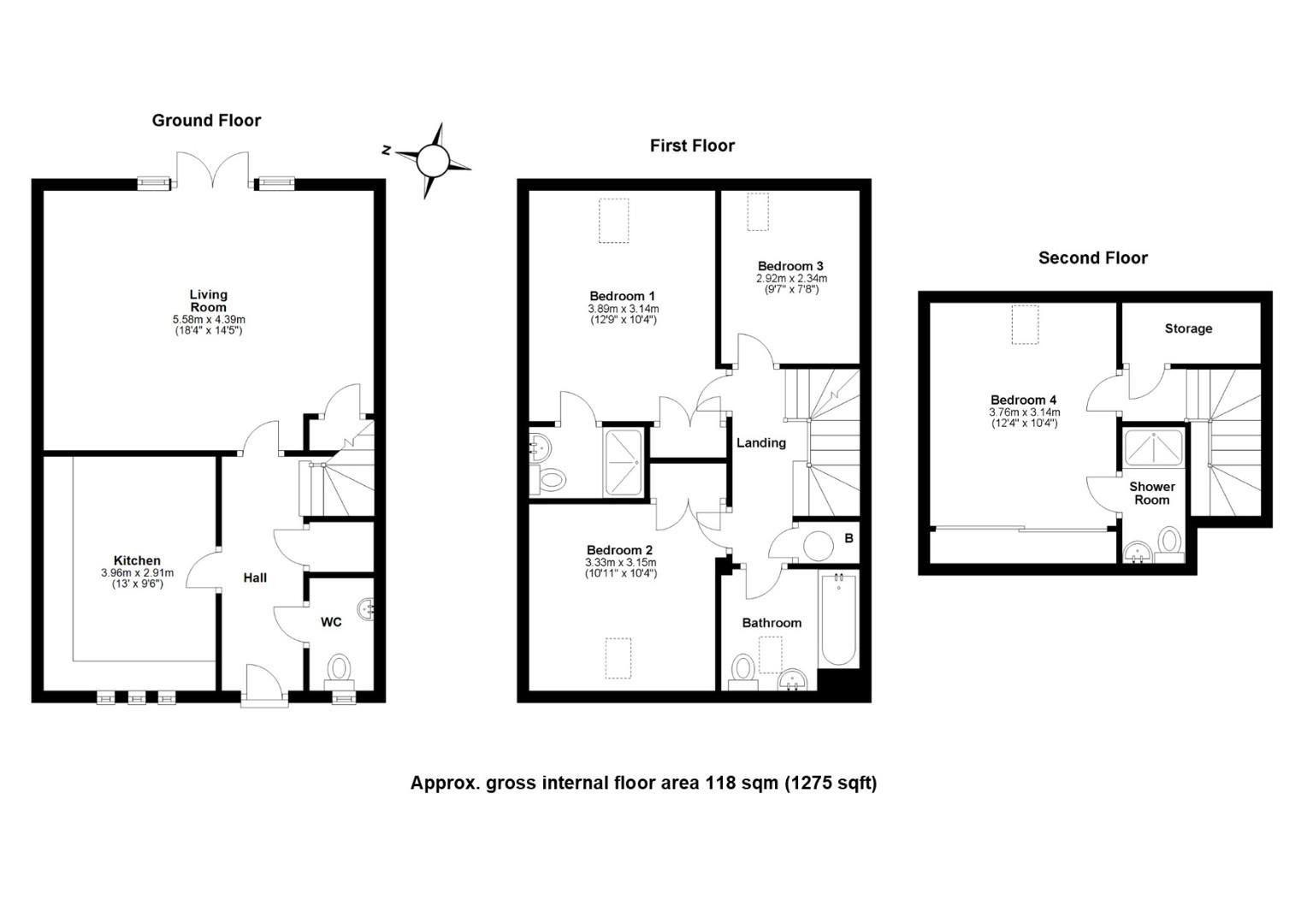
The accommodation comprises a welcoming reception hall with stairs to first floor accommodation, a fitted coat cupboard, oak flooring with heating under and a cloakroom/wc just off. There is a generous sitting/dining room, again with oak flooring and heating under and French doors out to the garden.
The kitchen/breakfast room is fitted with contemporary cabinetry, quartz work surfaces with inset one and a half sink unit , mixer tap and bevel drainer plus a range of Bosch appliances, including a ceramic hob, oven, extractor, full height fridge/freezer, dishwasher and washer/dryer.
On the first floor, there is a landing with staircase to the second floor and a cupboard housing a wall mounted gas fired central heating boiler and a pressurised water tank. There are three bedrooms, two of which have fitted wardrobe cupboards, an ensuite shower room and a family bathroom. On the second floor, off the landing, is a fitted storage cupboard and a further double bedroom, again with fitted wardrobe cupboards and an ensuite shower room.
Outside, is a double cart lodge and adjoining garden store. The rear garden is laid mainly to lawn with flower and shrub borders and beds, a paved patio and all is enclosed by fencing and gated rear access.
Meldreth is a picturesque village lying about 9 miles south of Cambridge and 4 miles north of Royston. Some of the best countryside in South Cambridgeshire surrounds the village over which there are numerous fine walks. Usual facilities are available and Meldreth mainline station is close by as is Royston which provides access to Kings Cross in about an hour. Communications are therefore excellent and the M11 is readily accessible.
Freehold
Mains services connected include: gas, electricity, water and mains drainage.
South Cambridgeshire District Council
Council tax band - D
Unless specifically mentioned in these particulars all fixtures and fittings are expressly excluded from the sale of the freehold interest.
Strictly by appointment through the vendor’s sole agents, Redmayne Arnold and Harris
Planning permission has been granted for a single storey commercial unit in the field to the rear of the back garden. More Information is available if required.



