4 bedroom 
End of Terrace House
To Rent

Park Parade, Cambridge

Per Month
£4,000
pcm
Park Parade
Cambridge
CB5 8AL
Property Type
End of Terrace House
Bedrooms
x4
Reception Rooms
x3
Bathrooms
x2
Size
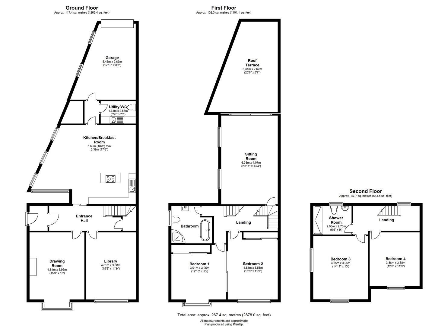
2878 sq. ft.
Property Details
Floorplans
Location
EPCs

This late-19th-century terraced home has been beautifully preserved, offering a rare combination of historic charm, tranquil surroundings, and iconic views over Jesus Green—while still providing effortless access to Cambridge city centre. It’s an exceptional choice for anyone seeking a refined, characterful property in one of the city’s most desirable neighbourhoods.

Thoughtfully extended, the property provides generous and versatile living space, beginning with an entrance hall leading to a drawing room, a library complete with wine cellar, and a kitchen/breakfast room, with a utility room. The first floor features a spacious living room with doors opening onto a private roof terrace—perfect for outdoor dining—along with two double bedrooms and a family bathroom. The top floor offers two further double bedrooms and an additional shower room.
This property will be managed by RAH.

Council Tax Band: G
EPC Rating: D
Minimum tenancy length 12 months
Deposit £5,610
Holding Deposit £390

Key Features
    Property Description
    Parking

    Garage and on-street permit parking in the area, subject to availability, council approval and fees.

    White Goods

    Washing machine, tumble dryer, integrated fridge/ freezer, integrated dishwasher, microwave, oven and gas hob

    Utilities, Bills and Payments

    All utilities to be arranged and paid for by Tenants, including but not limited to Council Tax, Gas, Electricity, Water, Broadband, Television and TV Licence.

    Supply

    Electricity Supply: Mains
    Water Supply:Mains
    Heating Supply: Mains gas boiler with radiators
    Sewerage Supply: Mains

    Mobile Coverage

    Mobile provider EE, Three, O2 and Vodafone are likely to have good coverage for voice and data. Please refer to Ofcom for guidance on mobile availability in the area.

    Broadband

    Fibre to premises/Ultrafast (FTTP) AND Fibre to cabinet/Superfast (FTTC) AND Standard/Copper (ADSL) broadband is available at the property, please refer to Ofcom to check for supply coverage and speeds.

    Read more
    Park Parade, Cambridge
    1 Park Parade
    Cambridge
    CB5 8AL
    Park Parade, Cambridge
    RAH Newsletter

    Stay 

    updated

    Sign up to our newsletter to receive the latest property and industry news direct to your inbox.
    Subscribe
    envelopephone-handsetmap-markermagnifierarrow-downarrow-right linkedin facebook pinterest youtube rss twitter instagram facebook-blank rss-blank linkedin-blank pinterest youtube twitter instagram