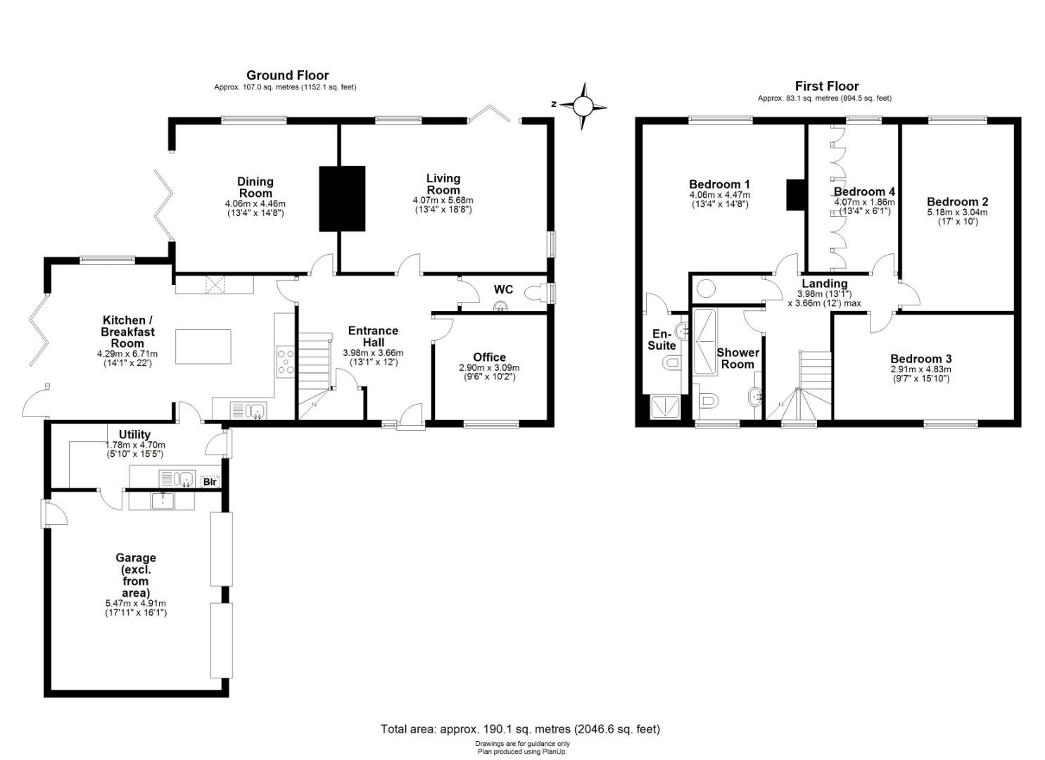
Constructed in 2001 and in delightful order throughout, this detached family home provides living accommodation over two floors and measures 190 Sqm/ 2046 Sqft. To the ground floor the property comprises of a large entrance hallway with stairs leading to the first floor, three reception rooms with both the dining room and living room benefitting from bi-folding doors, a kitchen breakfast area, a utility room and a separate WC. The generous kitchen/breakfast room is the hub of the house with bi-folding doors opening onto the garden, shaker style kitchen units, a central island, integrated appliances and feature tiles, this is the perfect space to entertain of an evening.
To the first floor are four generous bedrooms with bedroom four currently being used as a large walk in dressing area. Completing the first floor is two recently replaced bathrooms which includes an en-suite shower room to the master bedroom and a family bathroom with a double enclosed shower, low level WC with built in storage behind and a large vanity unit with integrated sink.
Externally – The property occupies a private plot which backs onto the nature reserve located within the Waterbeach Community Primary School. The rear garden wraps around the property and has been cleverly used by the current owners to incorporate two large patio areas, a generous lawned area and a vast array of fully stocked herbaceous borders. To the front of the property is a large block paved driveway which provides ample parking and leads onto the integral double garage.
Waterbeach is a popular village lying on the banks of the River Cam surrounded by glorious open countryside over which there are some fine walks. The village is situated just 6 miles north of Cambridge and can be approached either via a leisurely drive through Fen Ditton and Horningsea, or more speedily via the A10. The village enjoys excellent facilities and has a bustling centre set around an attractive village green. Here you will find a good range of local shops, pubs and take away restaurants, nearby in Milton there is a superstore and a broader range of facilities. There is a good bus service and the railway station is a most useful asset to the village, providing direct links to Cambridge and London which can be reached in around an hour. Waterbeach is also conveniently positioned for access to The Cambridge Science Park and Milton Country Park.
Freehold
Mains services connected include gas, electricity, water and mains drainage.
South Cambridgeshire District Council
Council tax band - F
Unless specifically mentioned in these particulars all fixtures and fittings are expressly excluded from the sale of the freehold interest.
Strictly by appointment through the vendor’s sole agents, Redmayne Arnold and Harris



