The property occupies a pleasant position with in the village offering far reaching views across fields to the front, situated within walking distance to the local primary school, church and public house.
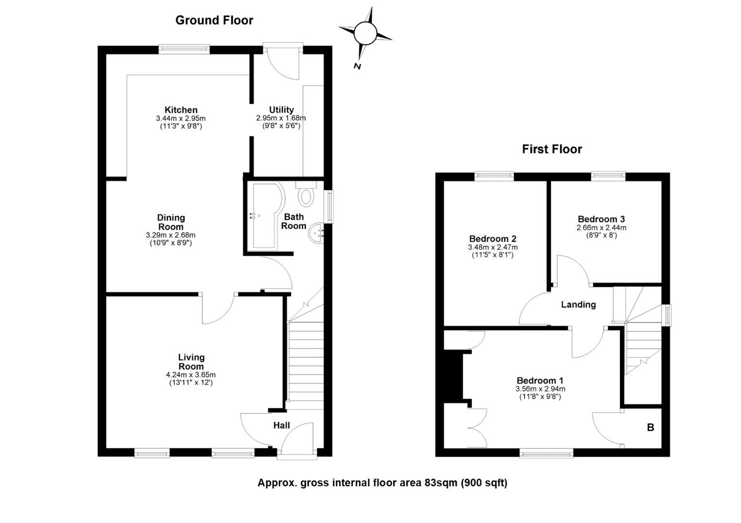
The accommodation comprises, an entrance hall, sitting room with feature electric fire place which leads through to the open plan kitchen/dining room, family bathroom and utility room. The kitchen is fitted with both base and eye level units, oven with electric hob and space for all white goods. The first floor accommodation comprises of three good size bedrooms, one benefiting from built in storage.
Outside you have a pleasant enclosed rear garden with south facing aspect, patio area, decked area and the rest is laid to lawn. Gated side access leads to the large driveway offering parking for multiple vehicles.
Coton is a quiet village situated just over 2 miles west of the City centre and surrounded by gently undulating countryside. Communications are excellent, Junctions 12 and 13 of the M11 are close by and the City can be reached within a few minutes drive either via the Madingley or Barton Roads. Alternatively the famous Coton footpath brings the Backs of the Colleges within enjoyable cycling distance. The village is consequently very popular in University circles due to its close proximity to the principal Colleges and University departments. Two 18 hole golf courses are within easy reach, and the local pub The Plough which sits within the heart of the village is an award winning gastropub and restaurant.
Freehold
Mains services connected include: gas, electricity, water and mains drainage.
Cambridge City Council
Council tax band - C
Unless specifically mentioned in these particulars all fixtures and fittings are expressly excluded from the sale of the freehold interest.
Strictly by appointment through the vendor’s sole agents, Redmayne Arnold and Harris



