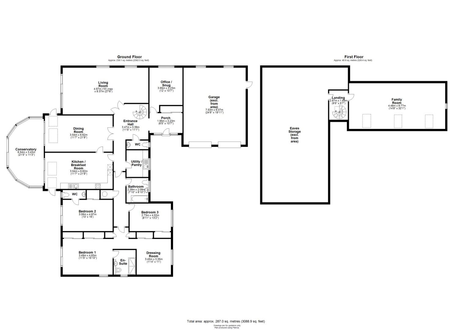
Constructed in 1999, this large, detached home measures approximately 3088 Sqft / 287 Sqm and provides generous living accommodation over two floors. Upon entering the property, you are greeted by a large entrance hall with built in cupboard ideal for coats and shoes. Off the entrance hall is an integral double garage and an inner hallway with a staircase leading up to the 32ft family/hobby room spanning across the first floor. Additionally, you will find four reception rooms which includes a 27ft living room with double aspect windows and patio door, a formal dining room with Velux windows, a conservatory which opens onto the delightful rear garden and a study which could also be used as a fourth bedroom if required. The kitchen/breakfast room for the property benefits from shaker style units at both base and eye level, large levels of worktop space and integrated appliances which includes a double fan assisted oven at eye level, induction hob and an integrated dishwasher.
The property has three main bedrooms all at ground level, this includes a master bedroom which was originally two bedrooms that has been converted into a large double bedroom, with a generous walk in dressing room and ensuite shower room. Bedrooms two and three each benefit from built in wardrobes and bedroom two has its own separate WC and sink. Completing the property is a utility room and family bathroom with a panelled bath, shower over, low level WC and pedestal sink.
The property has photovoltaic solar panels which provide an output of 6.5kw and a yearly income of approximately £1085. There is central air conditioning, CAT-5 cabling throughout, and fibre-to-home broadband.
Externally – The property is located within a private plot measuring approximately 0.33 acres and is nestled within land that was previously owned by numbers 8, 10 & 12 Cambridge Road. The property is set back from the road and accessible through a private driveway and provides ample parking directly to the front and side of the property. The rear garden is predominantly wildflower meadow , has an array of mature trees, shrubs and plants along the borders. The rear garden has a feature pond, a paved area to the far corner of the plot and a paved area ideal for alfresco dining in the summer months.
Milton is a village popular with families because of the highly regarded primary school, catchment for IVC and the ever-popular Country Park. The village is rich in amenities and has excellent major road links including the A14, A10 and M11 and access to Cambridge City centre, Cambridge North Station, the Park and Ride and the Science Park are all within walking and cycling distance, made easy by the pedestrian foot/cycle bridge over the A14. The village enjoys a lively community and possesses all usual facilities plus a Tesco Superstore, takeaways, hairdressers, four village pubs, children's play areas and green spaces. Milton is also within easy reach of the River Cam and numerous Fenland countryside walks.
Freehold
Mains services connected include: gas, electricity, water and mains drainage.
South Cambridgeshire District Council
Council tax band - G
Unless specifically mentioned in these particulars all fixtures and fittings are expressly excluded from the sale of the freehold interest.
Strictly by appointment through the vendor’s sole agents, Redmayne Arnold and Harris



