1 bedroom 
Apartment
To Rent

Chesterton Road, Cambridge

PCM
£1,400
pcm
Chesterton Road
Cambridge
Cambridge
CB4 3AR
Property Type
Apartment
Bedrooms
x1
Reception Rooms
x1
Bathrooms
x1
Property Details
Floorplans
Location
EPCs

Located in one of Cambridge’s most sought-after and well-connected areas, this beautifully presented ground-floor apartment offers contemporary living just moments from the River Cam. Positioned on Chesterton Road, the property is perfectly placed for scenic riverside walks along Midsummer Common and Stourbridge Common, making it ideal for those who appreciate green open spaces while remaining close to the city centre.

Cambridge city centre is within easy walking and cycling distance, and Cambridge North Station is readily accessible, providing excellent rail links to London and beyond. There are also regular bus services nearby, along with a wide range of local amenities including independent cafés, restaurants, convenience stores and supermarkets, all within comfortable reach.

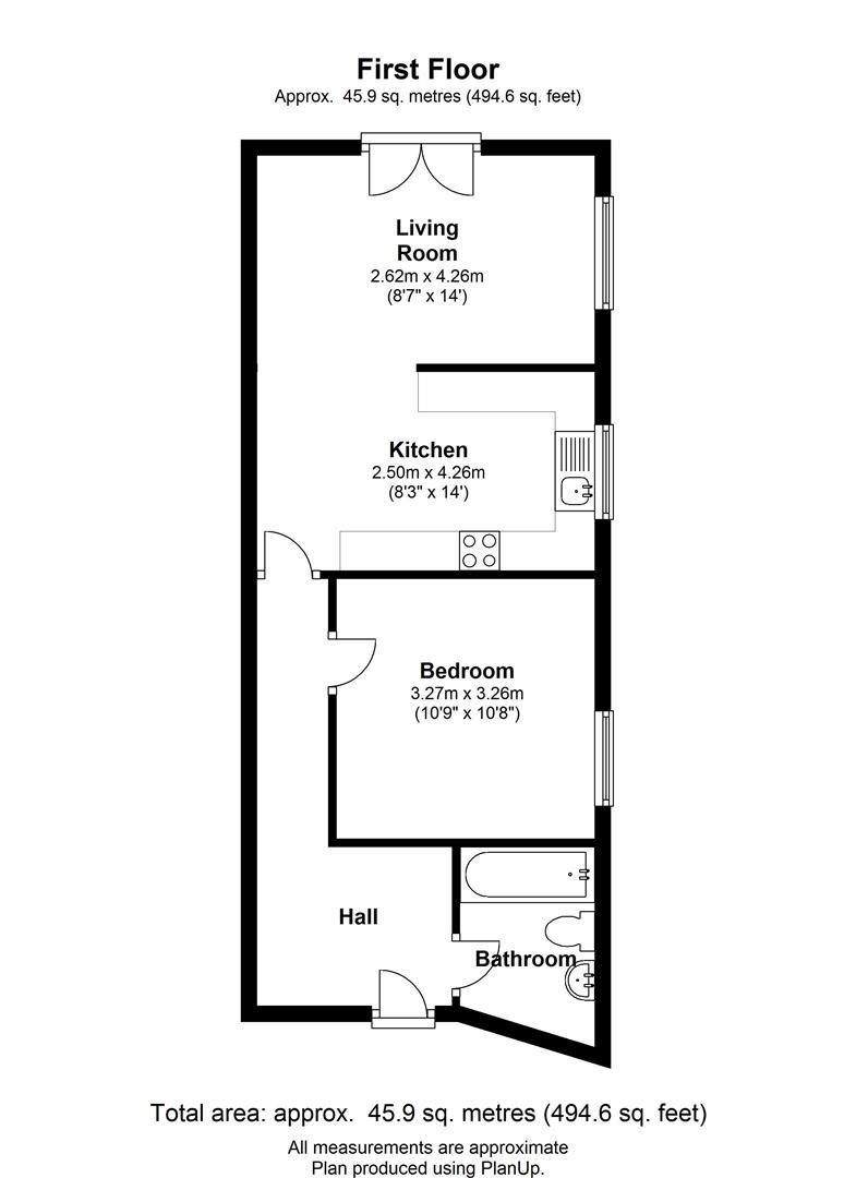
The apartment itself is unfurnished and finished to an exceptional standard. The impressive open-plan living area features a vaulted ceiling and French doors, creating a bright and airy space ideal for both relaxing and entertaining. There is a well-proportioned double bedroom and a stylish, modern shower room designed with a sleek contemporary finish.

Water charges are included within the rent. On-street permit parking is available in the area, subject to availability, council approval and associated fees. The property is managed directly by RAH.

Council Tax Band: C
EPC Band: C
Deposit: £1610
Holding Deposit: £340
Minimum 6-month tenancy

Key Features
    Property Description
    Parking

    On-street permit parking in the area, subject to availability, council approval and fees.

    White Goods

    Fridge/freezer, cooker, hob, washing machine

    Utilities, Bills And Payments

    Utilities to be arranged and paid for by Tenants, including but not limited to Council Tax, Gas, Electricity, Broadband, Television and TV Licence.

    Water is included in the rent.

    Supply

    Electricity: Mains
    Water: Mains > Included in the rent
    Heating: Gas > Combination boiler to radiators
    Sewerage: Mains

    Broadband

    Fibre to cabinet/Superfast (FTTC) broadband is available please refer to Ofcom to check for supply coverage and speeds.

    Mobile Coverage

    Mobile provider EE, Three, O2 and Vodafone are likely to have good coverage for voice and data. Please refer to Ofcom for guidance on mobile availability in the area.

    Read more
    Chesterton Road, Cambridge
    Flat 7, 113 Chesterton Road
    Cambridge
    Cambridge
    CB4 3AR
    Chesterton Road, Cambridge
    RAH Newsletter

    Stay 

    updated

    Sign up to our newsletter to receive the latest property and industry news direct to your inbox.
    Subscribe
    envelopephone-handsetmap-markermagnifierarrow-downarrow-right linkedin facebook pinterest youtube rss twitter instagram facebook-blank rss-blank linkedin-blank pinterest youtube twitter instagram