Constructed in and around 1890, this elegant Victorian home benefits from a delightful position within this well served Village and benefits from accommodation measuring in the region of 775 sqft / 72 sqm.
Having been recently redecorated throughout including a replacement kitchen, this semi-detached residence is ideal for working professionals looking to capitalise on the convenience of Waterbeach Train Station, providing regular transport into the Historic City of Cambridge.
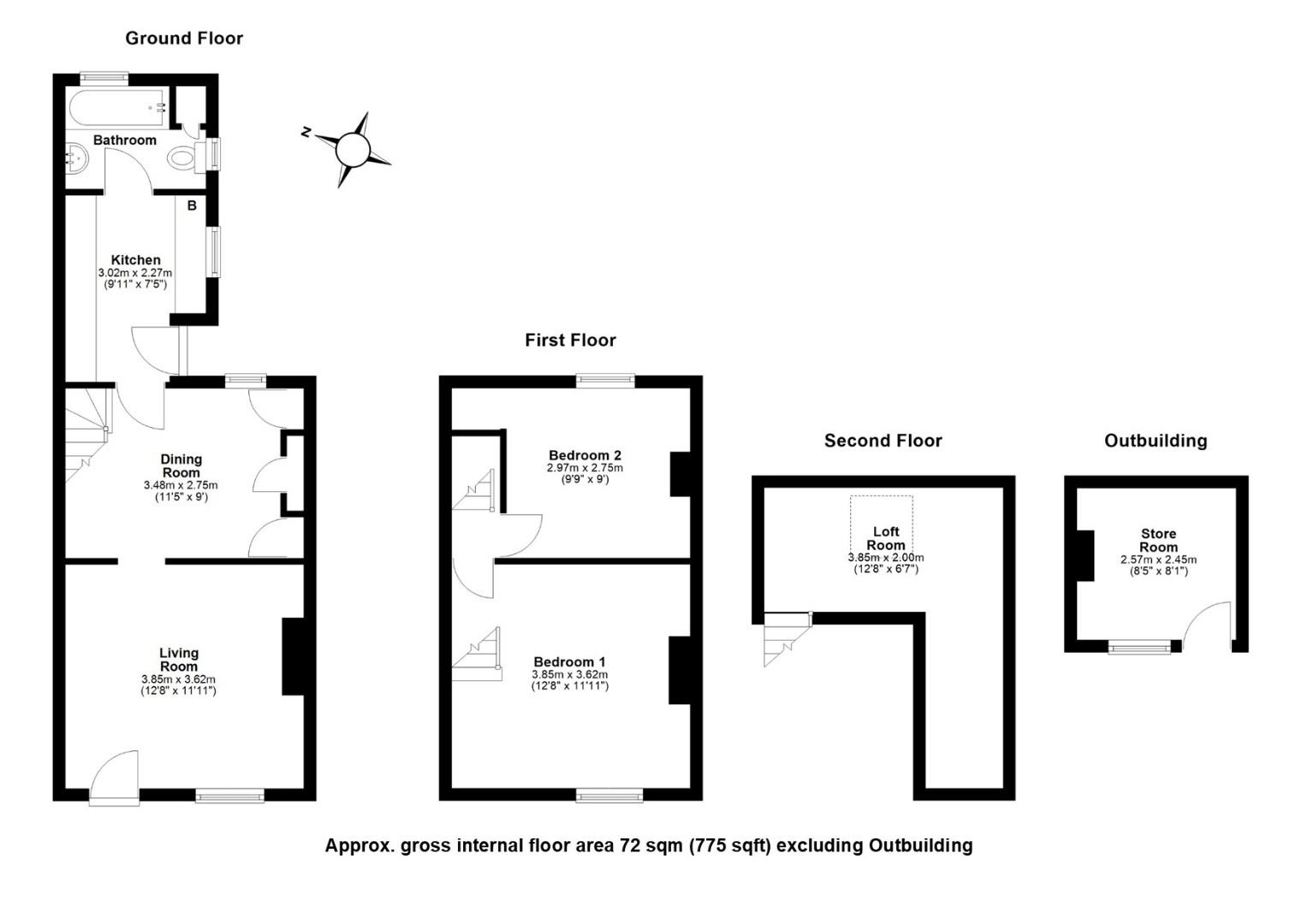
To the ground floor the property benefits from two well-proportioned reception rooms which includes a living room with an open fire, a sash window overlooking the green as well as a formal dining room with original bricked floor, built in cabinetry between the chimney and stairs which lead up to the first floor. The kitchen has been recently replaced by the current owner with a traditional style kitchen which is in keeping with the original Victorian build. The kitchen has ample worktop space, an Oak stable door opening into the passageway through to the garden, and space has been left for a washing machine, a dishwasher and a fridge-freezer. Completing the ground floor is a bathroom suite which benefits from a panelled bath with shower above, a low-level WC and pedestal sink basin.
To the first floor are two double bedrooms. Bedroom two benefits from floor to ceiling shelving in-between the chimney breast and a sash window with views across the mature rear garden. The enviable master bedroom suite has a large sash window with tremendous views across Waterbeach Green, a real focal point for the many residents that live within the village. Unusually, the master bedroom has a mezzanine floor with a cleverly placed study, ideal for those that work from home.
Externally, the rear garden of the property is accessible through a passageway off the kitchen and opens into a rather special external space. The rear garden benefits from two patio areas, one directly behind the outbuilding and the second to the very rear of the garden, benefitting from the afternoon sun with a pergola above. The remainder of the garden is laid to lawn with well stocked borders providing an abundance of colour for most of the year. Within the rear garden is a brick-built outbuilding with a recently replaced pitched tiled roof, which can be used as convenient storage or converted into a hobby space or home office.
Waterbeach is a popular village lying on the banks of the River Cam surrounded by glorious open countryside over which there are some fine walks. The village is situated just 6 miles north of Cambridge and can be approached either via a leisurely drive through Fen Ditton and Horningsea, or more speedily via the A10. The village enjoys excellent facilities and has a bustling centre set around an attractive village green. Here you will find a good range of local shops, pubs and take away restaurants, nearby in Milton there is a superstore and a broader range of facilities. There is a good bus service, and the railway station is a most useful asset to the village, providing direct links to Cambridge and London which can be reached in around an hour. Waterbeach is also conveniently positioned for access to The Cambridge Science Park and Milton Country Park.
Freehold
Mains services connected include: gas, electricity, water and mains drainage.
South Cambridgeshire District Council
Council tax band-C
Unless specifically mentioned in these particulars all fixtures and fittings are expressly excluded from the sale of the freehold interest.
Strictly by appointment through the vendor’s sole agents, Redmayne Arnold and Harris
Agent Note – This property has right of way across the rear of the neighbouring 28 Greenside. This access is shared with 28 and is accessed through a locked gate to the front.



