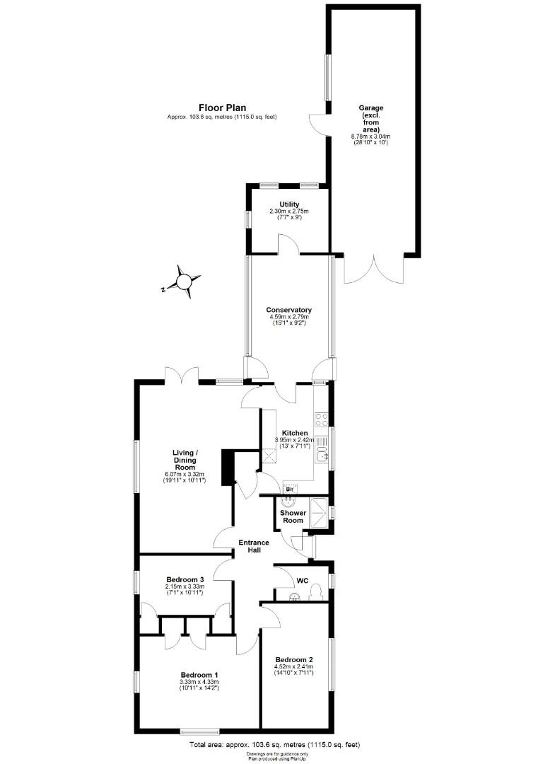
Located within a short walk of the many amenities within Histon, this detached bungalow measures 103.6 sqm / 1115 sqft and provides accommodation across one level.
Upon entering the property through the main entrance hall, you have three bedrooms located towards the front of the bungalow, including built-in storage to both bedrooms one and three. Towards the opposite side of the property is a double aspect living/dining room with French doors opening into the rear garden. The kitchen benefits from storage at both eye-level and base-level, generous amounts of worktop space and integrated appliances which includes a dishwasher, a double oven and a gas hob. The property has had a recently replaced bathroom / shower room and a separate WC. Accessible off the kitchen is a conservatory with access onto both the garden and the driveways and beyond the conservatory is a utility room also adjoingin the garage.
The property has a tandem garage, accessible from the driveway and the utility room. The large tandem garage measuring 28’10” by 10', benefits from power and lighting and has a large, pitched roof.
Externally; The overall plot measures in the region of 0.14 acres. To the front the property has a a lawn area with mature trees along the borders and a concrete laid driveway running the length of the property towards the garage. The rear garden is fully enclosed, laid predominantly to lawn and has a variety of trees and shrubs within.
Histon is widely acknowledged as being one of the most sought-after villages north of Cambridge. Its particularly convenient location just 3 miles from Cambridge city centre adds to its popularity and communications are first class, the A14 and M11 being within a few minutes’ drive. Histon is served by Cambridgeshire County Council's Guided Busway with an estimated journey time to the Science Park of approximately 3 minutes and is a 10-minute cycle. It is also conveniently located for Cambridge North railway station.
The village boasts many local facilities including excellent schooling for all ages from pre-school to sixth form, including the well regarded Impington Village College. Good local shopping is available in the village and there is a regular bus service to Cambridge. Girton Golf Club is also within a few minutes’ drive.
Freehold
Main services connected include: water, electricity, gas and mains drainage.
South Cambridgeshire District Council.
Council Tax Band - E
Unless specifically mentioned in these particulars, all fixtures and fittings are expressly excluded from the sale of the freehold interest.
Strictly by appointment through the vendor’s sole agents, Redmayne Arnold and Harris.



