2 bedroom 
Flat
To Rent

Newmarket Road, Cambridge

PCM
£1,200
pcm
Newmarket Road
Cambridge
CB5 8HE
Property Type
Bedrooms
x2
Reception Rooms
x1
Bathrooms
x1
Property Details
Floorplans
Location
EPCs

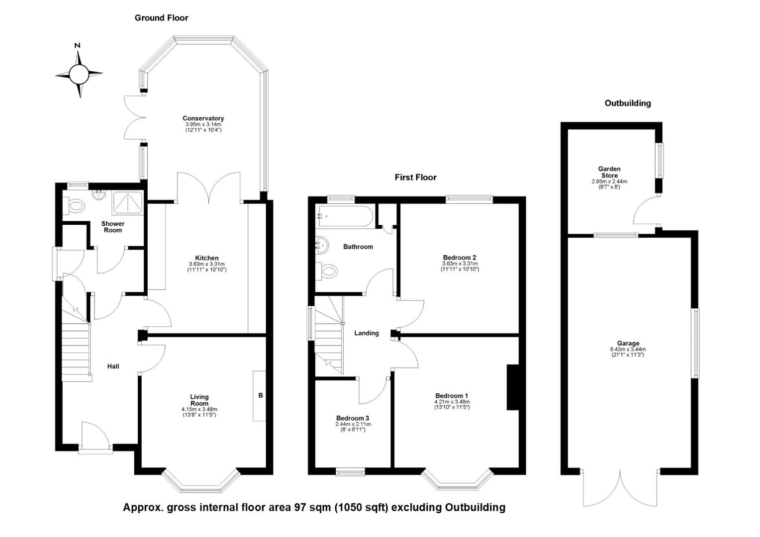
Located on Newmarket road, the property is just a short walk to the river and a stones throw away from a selection of thriving shops and amenities. This two bed duplex flat is above shops on Newmarket Road and is accessed via wooden stairs and a terrace. Although there is no parking available at the property, the landlord advises that there is parking available in surrounding streets. The property lies on the first floor, with two bedrooms, a bathroom, a living room and a kitchen. This property managed by RAH.

Council Tax Band: C
EPC Rating: D
Deposit: £1380
Holding Deposit: £270

Key Features
    Property Description
    Parking

    There is no parking available at this property.

    White Goods

    Fridge/freezer, Washing Machine, Cooker.

    Utilities, Bills and Payments

    All utilities to be arranged and paid for by Tenants, including but not limited to Council Tax, Electricity, Water, Broadband, Television and TV Licence.

    Supply

    Electricity Supply: Mains
    Water Supply: Mains
    Heating Supply: Mains electric
    Sewerage Supply: Mains

    Broadband

    Fibre to cabinet/Superfast (FTTC), is installed at the property.
    Please refer to Ofcom to check for supply coverage and speeds.

    Mobile Coverage

    Mobile provider EE, Three, O2 and Vodafone are likely to have good coverage for voice and data. Please refer to Ofcom for guidance on mobile availability in the area.

    Read more
    Newmarket Road, Cambridge
    120a Newmarket Road
    Cambridge
    CB5 8HE
    Newmarket Road, Cambridge
    RAH Newsletter

    Stay 

    updated

    Sign up to our newsletter to receive the latest property and industry news direct to your inbox.
    Subscribe
    envelopephone-handsetmap-markermagnifierarrow-downarrow-right linkedin facebook pinterest youtube rss twitter instagram facebook-blank rss-blank linkedin-blank pinterest youtube twitter instagram