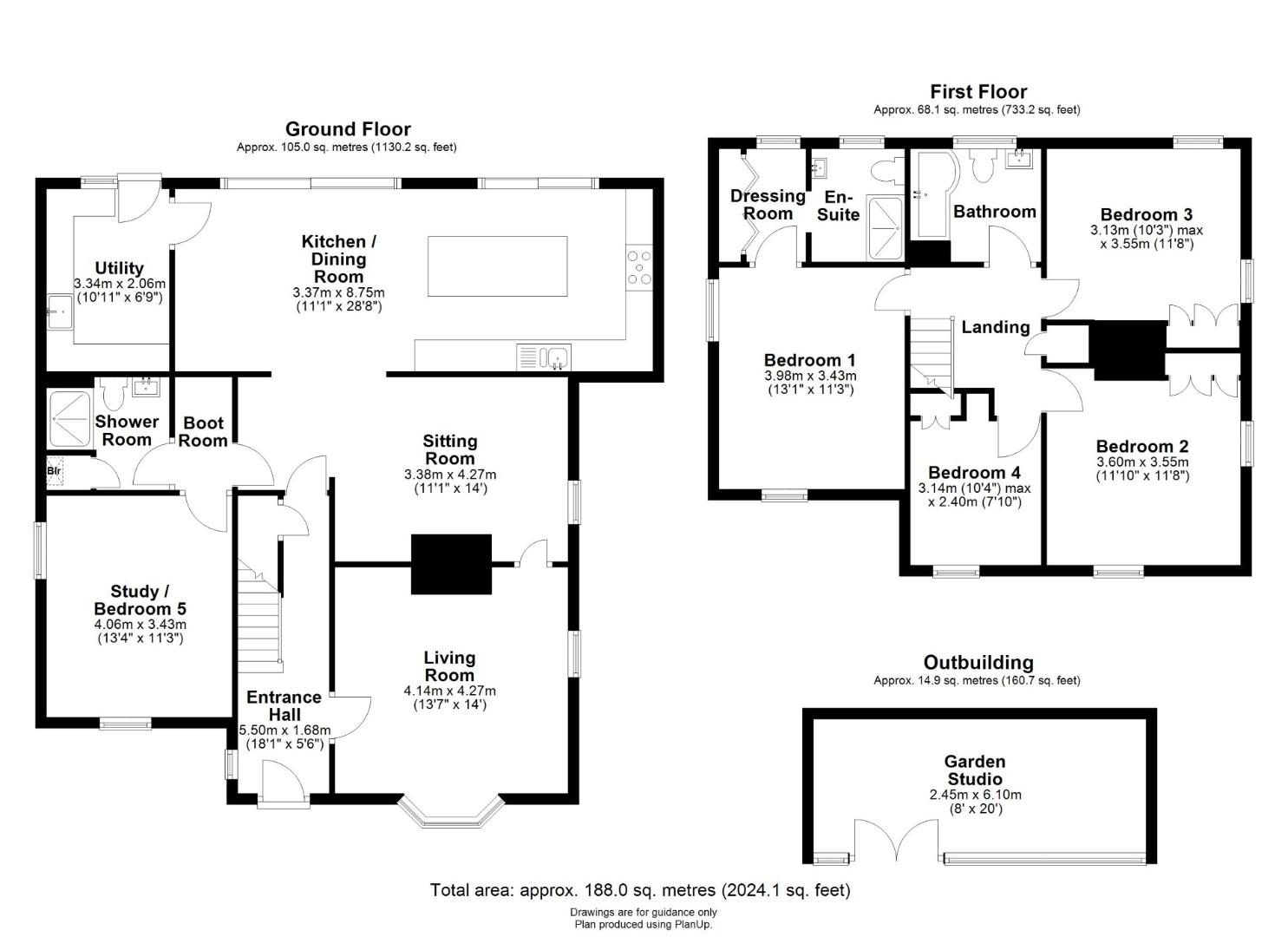
Originally constructed in 1846, this home has most recently been extended in 2017 and provides generous levels of living accommodation measuring 2024.1sqft / 188sqm. To the ground floor the property comprises of three reception rooms which includes a living room with bay window to the front, a sitting room/snug with woodburning stove and a study/fifth bedroom, which would be ideal for an elderly relative, with a shower room off. In 2017 a ground floor, rear extension was carried out by the current owners and now incorporates a stunning kitchen/family area with two large sliding doors opening onto the rear garden and a separate utility space. The kitchen benefits from granite work surfaces, a wide range of cupboards to both eye level and base level, and a large kitchen island/breakfast area with further storage below. Flooding the extension is copious amounts of natural light thanks largely to two oversized sliding doors and two skylight windows above.
To the first floor of the property are four bedrooms with three of these bedrooms having double aspect windows. The splendid master bedroom suite benefits from a walk in dressing room and an en-suite shower room. Bedrooms two, three and four have fitted wardrobe spaces. Completing the first floor is the family bathroom with a ‘P’ shaped bath with shower over, a low-level WC, pedestal sink unit and a heated towel rail.
In 2016 the current owners had a garden office constructed which has many uses including an office space for those working from home and an additional reception space for those who don’t. The garden office is fully insulated and has double glazed windows and a door across the front with air-conditioning. In 2024, the property had replacement double glazing throughout.
Externally – to the front of the property is a walled front garden with an array of established trees and a pathway which leads up to the front door. The rear garden of the property is predominantly laid to lawn, has a patio area off the extension and a further patio area to the far end. Throughout the rear garden are herbaceous borders which incorporate several established trees and shrubbery. Off road parking is available for the property with a driveway for two vehicles to the rear. The property also benefits from a garage, accessible off the driveway.
Over is a large and popular village situated about 9 miles north west of Cambridge. The village offers a wide range of local facilities including general store, hairdresser, public house, green, recreation ground and a very popular community centre.
There is a primary school in the village with secondary schooling available at the highly regarded Swavesey Village College. Whilst being a quiet village it is ideally well situated to access the guided bus stop located between Over and Swavesey with buses running to St Ives and Cambridge, and the new Cambridge North Railway Station and north to St Ives, Huntingdon and Peterborough. In addition, there is an adjoining off road cycle/walkway. Access to the A14 is only five miles away.
There are plentiful local walks including along the River Ouse and at the nearby RSPB reserve at Fen Drayton Lakes.
Freehold
Mains services connected include: gas, electricity, water and mains drainage.
South Cambridgeshire District Council
Council tax band - F
Unless specifically mentioned in these particulars all fixtures and fittings are expressly excluded from the sale of the freehold interest.
Strictly by appointment through the vendor’s sole agents, Redmayne Arnold and Harris



