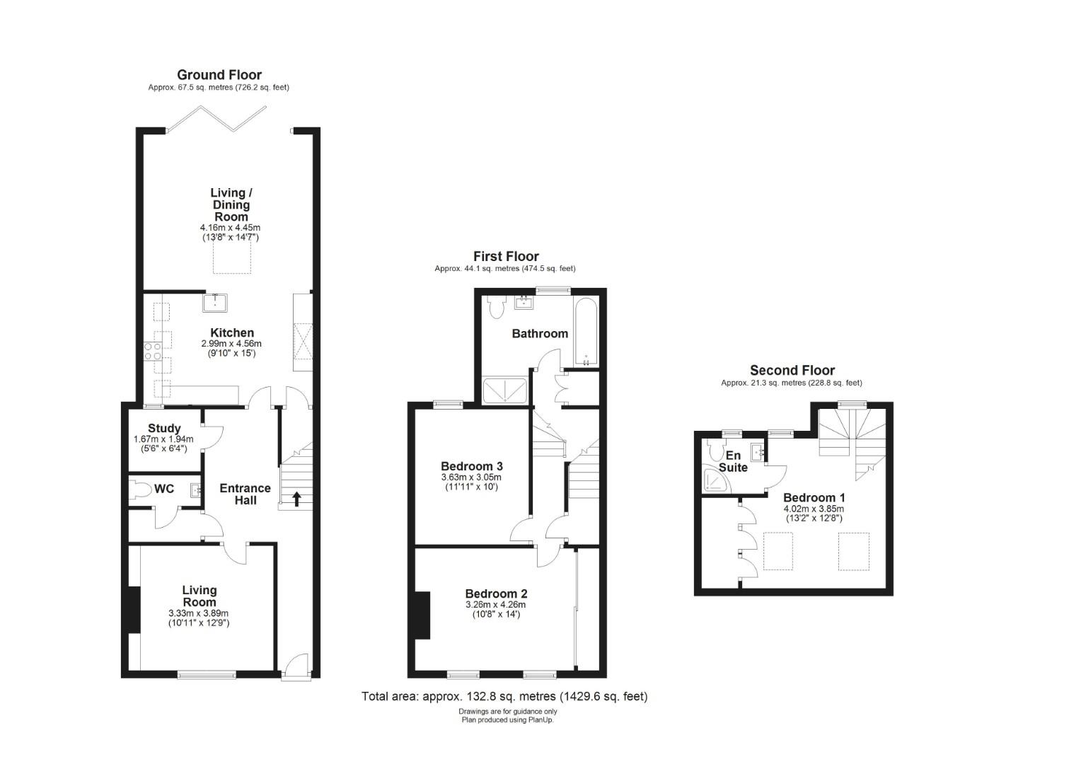
This beautifully presented mid terrace house is of brick elevations under a slate roof and has been extended in order to create an attractive blend of traditional and contemporary space over three floors.
The property offers spacious entrance hall with cloakroom, sitting room, small study, light and airy kitchen/dining/living room with high-quality units and appliances, and bi-fold doors to the south-facing garden. There is a useful utility cupboard under the stairs.
On the first floor are two large bedrooms and a spacious family bathroom and on the second floor, a third bedroom and shower room.
The property has an attractive south-facing rear garden, about 24’ deep and is connected to a gated rear pedestrian access. There is easy access to the historic centre.
Freehold
Haymarket Road is a highly desirable location between Pound Hill and Lady Margaret Road, about 0.2 miles from Magdalene Bridge, 0.6 miles from the Market Square and 1.7 miles from Cambridge railway station. There are a good selection of independent local shops on Bridge Street, whilst other facilities and amenities can be found in the City centre. A residents parking permit scheme is available.
All mains services connected
Cambridge City Council
Council tax band - F
Unless specifically mentioned in these particulars all fixtures and fittings are expressly excluded from the sale of the freehold interest.
Strictly by appointment through the vendor’s sole agents, Redmayne Arnold and Harris



