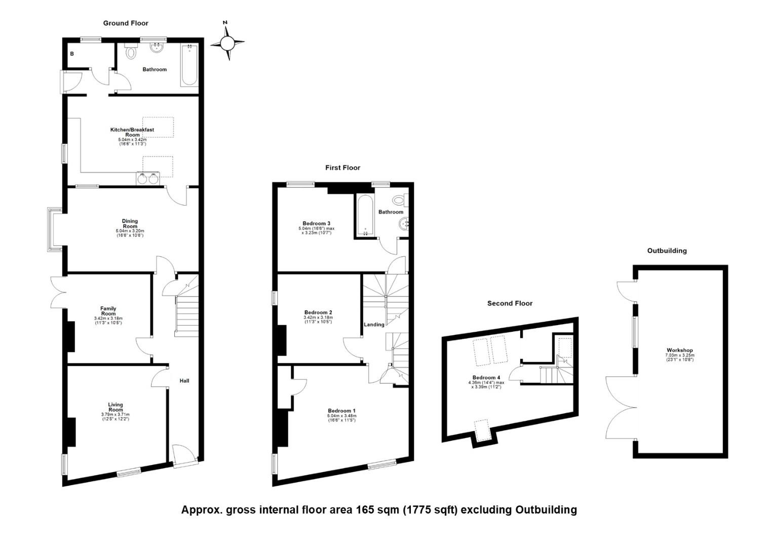
Number 1 Alpha Terrace is an attractive Georgian house, built prior to the rest of the Terrace which are early Victorian. Over the years the property has been subject to several programmes of expansion with accommodation arranged over three floors approximately 1775 sqft. The property boasts off road parking plus mature walled garden with workshop which could easily be converted into a home office if required.
The accommodation comprises a welcoming reception hall with chequerboard flooring, extending to solid wood flooring in the inner hallway and stairs to first floor accommodation and ornate wall moulding. There are three reception rooms including sitting room, snug and bay-windowed dining room., all with original wood strip flooring. The kitchen/breakfast room boasts a mono-pitched roof incorporating two large Velux windows with bespoke solid wood cabinetry and work surfaces with ceramic one and a half sink unit with mixer tap and drainer, gas fired arga, space for fridge/freezer, washing machine and dishwasher.
Off the lobby, to the rear is a door to the garden, a generous bathroom and a laundry room housing a gas fired central heating boiler.
On the first floor there are three good sized bedrooms including the master bedroom with en suite bathroom and on the second floor is a fourth bedroom with Velux windows and generous eaves storage.
Outside, there is off road parking for one vehicle to the side of the house, however additional parking could easily be created if required. The rear garden is laid to lawn with flower and shrub borders and beds, a selection of mature fruit and specimen trees, a generous paved patio, raised flower and shrub beds and a large timber-clad workshop with power and light connected.
Trumpington is an eagerly sought after residential area under two miles from Cambridge City centre. Approach to the city is fast and direct and includes a traffic-free cycle route alongside the guided busway. All usual facilities are readily available including excellent shopping, with Waitrose a short walk away and The Shelfords nearby. There are several good local schools and the property is ideally placed for access to the M11, Addenbrooke’s Hospital and the Cambridge Biomedical Campus. Most of the city's schools are also within easy reach.
Freehold
Mains services connected include: gas, electricity, water and mains drainage.
Cambridge City Council
Council tax band-D
Unless specifically mentioned in these particulars all fixtures and fittings are expressly excluded from the sale of the freehold interest.
Strictly by appointment through the vendor’s sole agents, Redmayne Arnold and Harris



