The property occupies a pleasant cul de sac position just a short walk from the village amenities and main line train stations. The property boasts ample off road parking, a large one car garage and a mature landscaped rear garden backing onto a pleasant woodland area. The current owner has resided at the property for many years and has periodically updated and improved the house, resulting in very well presented and spacious accommodation.
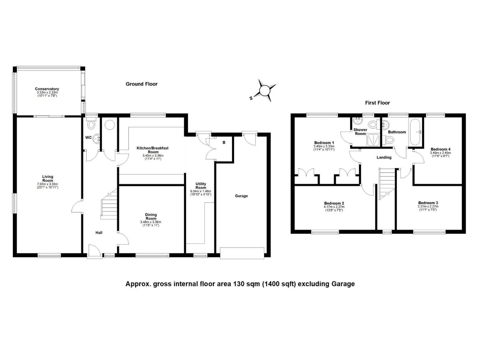
The accommodation comprises a welcoming reception hall with stairs to first floor accommodation and cloakroom/WC just off. There is a reception room with feature open fireplace, a dining room and a recently constructed conservatory extension which boasts panoramic views over the garden and underfloor heating. The kitchen/breakfast room is fitted with attractive cabinetry, ample fitted working surfaces, within set one and a half sink unit with mixer tap and drainer, four ring ceramic hob, double oven including a microwave oven and warming drawer. There is an integrated dishwasher and fridge.
Adjacent, is the handy utility room, again with fitted base level and wall mounted storage cupboards, fitted working surfaces with single sink and drainer , space for the usual white goods and a boiler cupboard housing a Grant oil fired central heating boiler and a door out to the garden.
Upstairs, there are four bedrooms including the master bedroom with fitted wardrobe cupboards and an en suite shower room plus a family bathroom with corner bath.
Outside, a block paved driveway provides parking for two to three cars and leads to the garage with electric up and over door with power and light connected, with personal door to the rear garden. The rear south facing garden has been professionally landscaped and boasts a generous Indian sandstone patio, a shaped and manicured lawn with well stocked flower and shrub borders and beds with a paved pathway that leads to an additional decked terrace. There is a vegetable/herb/fruit garden and a selection of both specimen and fruit bearing trees and all backs onto a pleasant wooded area enjoying maximum privacy and seclusion.
Stapleford is a lively village lying just 4 miles south of Cambridge. Usual facilities are available which include a general store, newsagent, hairdresser etc. and additional shopping is available in nearby Great Shelford.
There is a bus service and Shelford mainline station serving both London and Cambridge is within less than a mile from the property, 0.8 miles to be precise. The village is excellent for access to the M11 (Junctions 10 or 11) and Stansted Airport. There is a recreation ground, tennis court and excellent walks are available, in particular Magog Down, the Roman Road circular walk and historic Wandlebury.
Stapleford has a local village school and Sawston Village College is about 3 miles away. The Gog Magog Golf Course is also nearby. The village is one of the most favoured spots in Cambridgeshire to live and very convenient for Cambridge.
Freehold
Mains services connected include: electricity, water and mains drainage. Oil fired central heating boiler.
South Cambridgeshire District Council
Council tax band - E
Unless specifically mentioned in these particulars all fixtures and fittings are expressly excluded from the sale of the freehold interest.
Strictly by appointment through the vendor’s sole agents, Redmayne Arnold and Harris



