No. 26 Bailey Mews is a spacious and versatile duplex, situated just off Auckland Road, within easy reach of the city centre,
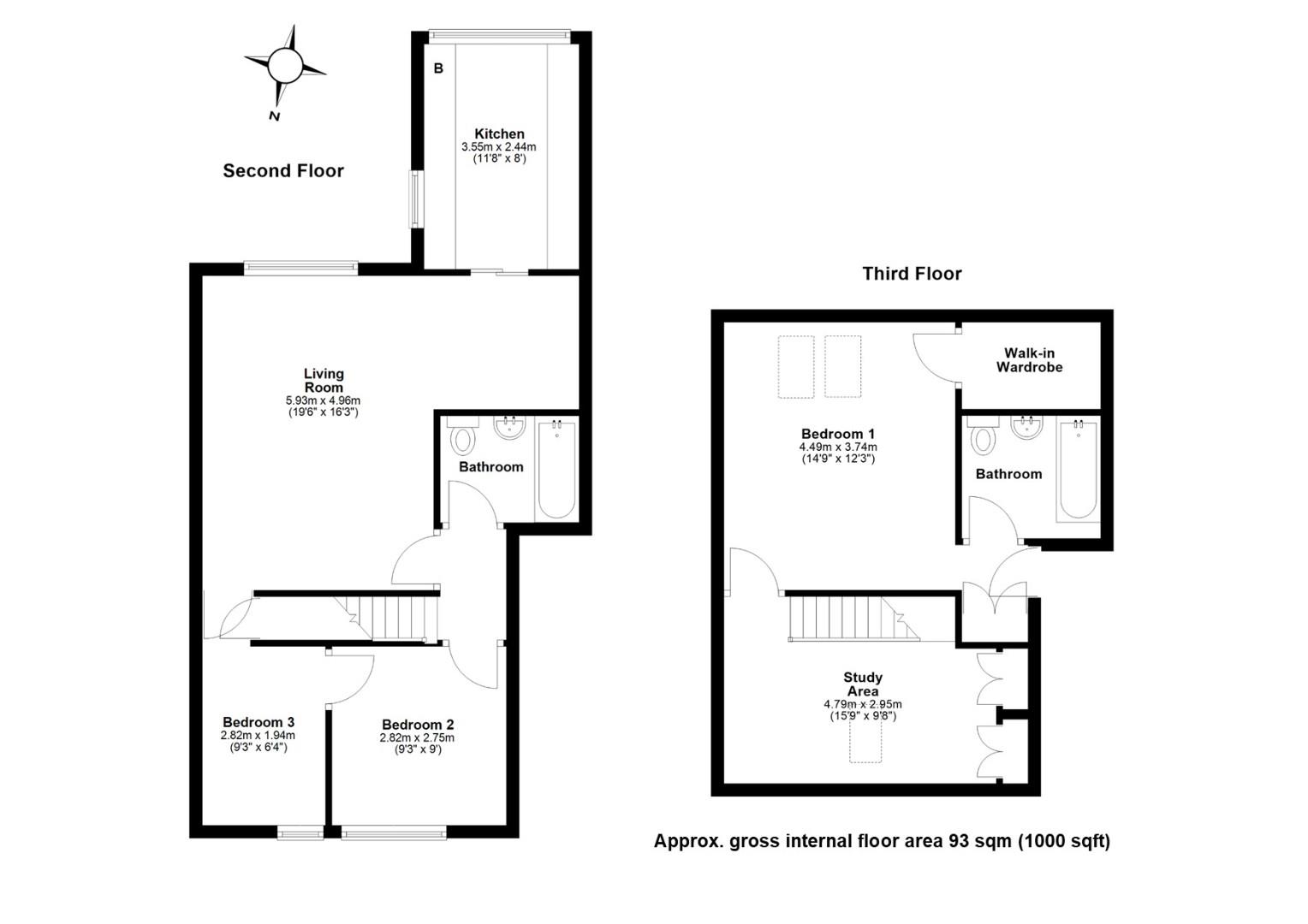
The accommodation briefly comprises a spacious open plan living / dining room, which has southerly aspects and views over the front of the building. The kitchen benefits from a dual aspect and has been fitted with a range of base and eye-level units. All the kitchen appliances are available for sale: cooker, fridge/freezer, washer/dryer and a dishwasher
Bedrooms 2 and 3 have an interconnecting door but maintain their own entry points and could be easily partitioned off. The family bathroom is fitted with a three-piece white suite with a heated towel radiator.
On the top floor is the master bedroom, which is particularly spacious, has an ensuite bathroom and a walk in wardrobe. The master bedroom also has access to a boarded loft space providing space for storage. Finally, there is a large landing / study area, which offers versatility to suit individual purchasers needs.
Outside the development sits within attractive well-kept communal gardens with bike and bin storage areas and a sheltered allocated parking space.
New PVC double-glazed windows were installed in 2013.
Bailey Mews enjoys an excellent location being just off Maids Causeway, adjoining Midsummer Common. The city centre itself, with its wide range of facilities and amenities is within walking or cycling distance and the wide open spaces of both Midsummer Common and Jesus Green are adjacent. Bailey Mews is a scheme of 39 leasehold flats and 6 freehold townhouses approached from Auckland Road which in turn is off Maids Causeway.
Leasehold with share of freehold.
Lease is 150 years from October 2002.
The service charge is approximately £500 per quarter. We understand the service charge covers buildings insurance, water rates, communal cleaning and a gardening service. This will be reviewed annually and adjusted according to costs.
There is no ground rent payable.
The management company is The Maltings Management Company Ltd.
Main services connected include: water, electricity, gas and mains drainage.
Cambridge City Council.
Council Tax Band - E
Unless specifically mentioned in these particulars, all fixtures and fittings are expressly excluded from the sale of the leasehold interest.
All the kitchen appliances are available for sale. Cooker, fridge/freezer, washer/dryer and dishwasher
Strictly by appointment through the vendor’s sole agents, Redmayne Arnold and Harris.



