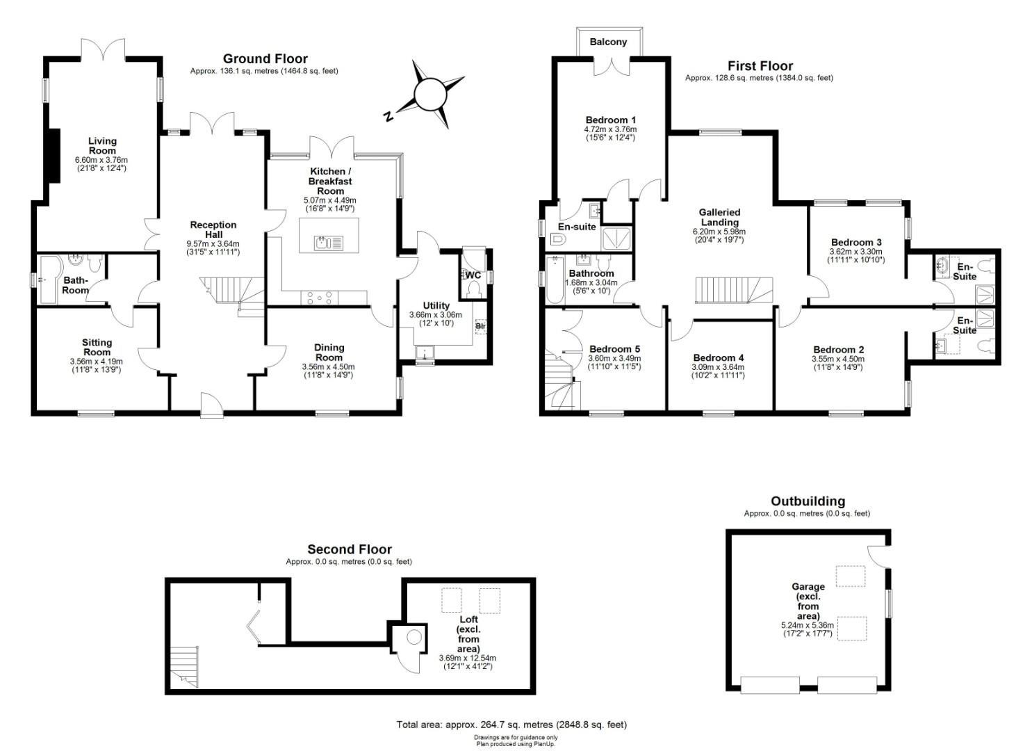
Constructed in 2002 this large executive home measures 2848.8 sqft / 264.7 sqm (excluding the loft room) and provides generous accommodation over three floors.
To the ground floor the property comprises of four recaption rooms, which includes a substantial reception hall with oak turned stairs and feature window and doors opening onto the rear garden. The three other reception rooms include a formal dining room, a living room and a sitting room, which could be used as a home office or a guest bedroom as it has a bathroom adjoining. Completing the ground floor is a large kitchen / breakfast room with copious levels of natural light filling the space due to the part-glass roof and large windows and doors. The kitchen benefits from tiled flooring, a kitchen island, storage at both eye-level and base-level and a separate utility/boot room.
To the first floor is a spacious galleried landing overlooking the reception hall below. The master bedroom suite measures 21ft in length, has a Juliet balcony with far reaching fields views to the rear as well as a delightful ensuite shower room. Four further bedrooms occupy the first floor with ensuite shower rooms to both bedrooms two and three. Completing the first floor is a family bathroom with feature chequerboard tiles, a panelled bath, low level WC and a pedestal sink unit.
To the second floor (accessible off bedroom five) is a large, fully boarded loft space with Velux windows.
Externally – To the front of the property is a large gravel laid driveway providing off road parking for numerous vehicles. Along the driveway is a detached double garage under a pitched roof with two separate up-and-over doors. To the front of the boundary is a large hedgerow and a small lawned area tucked to the side of the garage.
The rear garden of the property, has been beautifully landscaped with a large decking area accessed off the reception hall and a patio area accessible off the living room and the utility/boot room. The main garden is laid predominantly to lawn with a gravel laid pathway running through the middle and down towards the large, paved area to the very rear. Within the plot are an array of mature trees and shrubs providing privacy from the neighbouring homes each side.
Swavesey is a lively village conveniently situated just 9 miles north of Cambridge and about 5 miles from the market town of St Ives. There are local shopping facilities provided in the village and both the primary and village college have an excellent reputation. There is a regular bus service to Cambridge and the A14 and M11 motorway are within just a few miles drive. In addition the guided busway runs from Huntingdon Railway station to Trumpington Park & Ride providing a direct link to Cambridge City centre, Cambridge railway station and Addenbrookes Hospital. Rail links to London are available from nearby Huntingdon or Cambridge railway stations.
Freehold
Mains services connected include: gas, electricity, water. mains drainage.
South Cambridgeshire District Council
Council tax band-D
Unless specifically mentioned in these particulars all fixtures and fittings are expressly excluded from the sale of the freehold interest.
Strictly by appointment through the vendor’s sole agents, Redmayne Arnold and Harris



