The property enjoys a fabulous tucked away cul-de-sac position just a short walk from the village schooling and thriving village centre. The current owners have greatly improved the property with a programme of expansion and refurbishment resulting in spacious, flexible and beautifully presented accommodation. The garage has been converted and enlarged and could easily be utilised as a self-contained annexe should such accommodation be required.
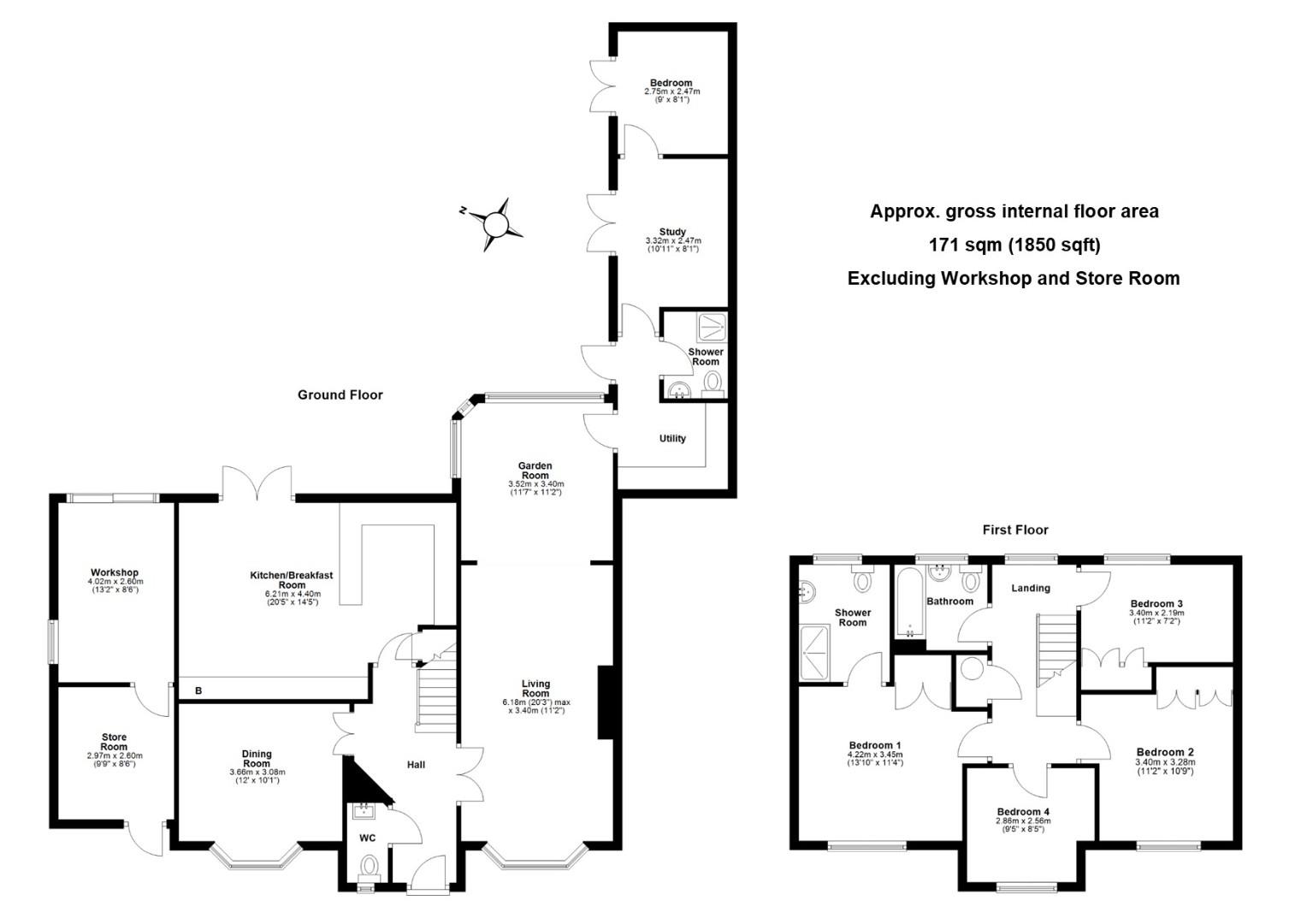
The accommodation comprises a welcoming reception hall with stairs to first floor accommodation, Karndean flooring and a cloakroom/WC just off. There are three reception rooms including a bay-windowed sitting room with a feature gas-fire, a bay-windowed dining room with wood panelling and a garden room. The generous kitchen/breakfast/family room has been fitted with modern cabinetry, quartz work surfaces with inset one and a half sink unit with boiling water tap and bevel drainer, a plate warming/proving drawer, a five-ring gas hob, twin ovens, one of which is a combination microwave, extractor, a full height fridge, and a separate full height freezer and a side door out to the workshop and storage room, which the current owners use as a gym.
The garage conversion/extension comprises a utility room, shower room, bedroom and a study, which is currently used as a playroom.
Upstairs off the half galleried landing are four further good sized bedrooms, a luxury ensuite to the master bedroom and family bathroom.
Outside, there is off road parking for several vehicles with access to the workshop and storage room. The rear garden is laid mainly to lawn with flower and shrub borders, a generous decked area with pergola over accommodates a seating and dining area plus an outside kitchen, which includes a domed pizza oven and open fronted barbeque. The property has been recently re-fenced and enjoys good levels of privacy.
Melbourn is an historic village with the Icknield Way running along its southern boundary, now bypassed, lying about 10 miles south of Cambridge and 3 miles north of Royston. The Parish Church of All Saints dates from the 13th century and the village is noted for its fine old cottages. Usual local facilities are readily available and the village has a wide range of local shops. Communications are excellent and Meldreth mainline station is close by which can provide a link to London King's Cross in under one hour. Education facilities are good and includes Melbourn Primary School and the well known Melbourn Village College nearby.
Freehold
Mains services connected include: gas, electricity, water and mains drainage.
South Cambridgeshire District Council
Council tax band - F
Unless specifically mentioned in these particulars all fixtures and fittings are expressly excluded from the sale of the freehold interest.
Strictly by appointment through the vendor’s sole agents, Redmayne Arnold and Harris



