38 City Road is a broad Victorian terrace house benefitting from a striking two storey rear extension, which incorporates a first-floor balcony linking to a roof terrace.
This individual period home located within the Kite area of the city, offers light, spacious and well-presented accommodation over two floors, with the benefit of a generous, west-facing rear garden providing rear pedestrian access. The main shopping area, outstanding schools and large green spaces are all within walking distance.
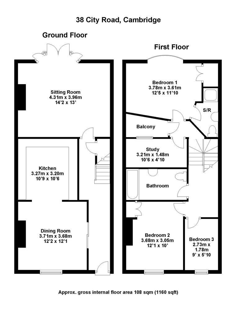
The accommodation comprises a reception hall, a charming dining room with attractive period features opening into a modern and well-equipped kitchen. This provides an extensive range of cabinetry and drawers, granite working surfaces and integrated appliances. A generous sitting room to the rear has a central feature fireplace, restored floorboards, a bespoke media unit with additional storage, complete views of and access to the garden.
The first-floor accommodation offers a family bathroom suite with a fold-away staircase rising to a boarded loft space, study and three bedrooms. The principal bedroom provides bespoke fitted storage space and en suite facilities. Access to the first-floor balcony is via an inner hallway. The balcony provides a fold-away staircase leading to a roof terrace offering views across the city.
Outside, the rear garden is fully enclosed with a west-facing aspect and gated pedestrian access. This charming walled garden is predominately laid to paving with well-stocked flower beds. There is a timber shed ideal for garden storage.
Gated pedestrian access from rear garden.
City Road forms part of an established area known as the Kite conveniently located between the Grafton Centre and the shops of Burleigh Street and Fitzroy Street, including Waitrose supermarket. In addition, Parker's Piece, Christ Pieces, Midsummer Common, the city centre and the river, together with several colleges and University departments, are within walking or cycling distance.
Freehold
Main services connected include: water, electricity, gas and mains drainage.
Cambridge City Council
Council Tax Band - E
Unless specifically mentioned in these particulars, all fixtures and fittings are expressly excluded from the sale of the freehold interest.
Strictly by appointment through the vendor’s sole agents, Redmayne Arnold and Harris.



