4 bedroom 
Semi-Detached House
To Rent

Hardwick Street, Cambridge

£3,200
pcm
Hardwick Street
Cambridge
CB3 9JA
Property Type
Semi-Detached House
Bedrooms
x4
Reception Rooms
x2
Bathrooms
x3
Size
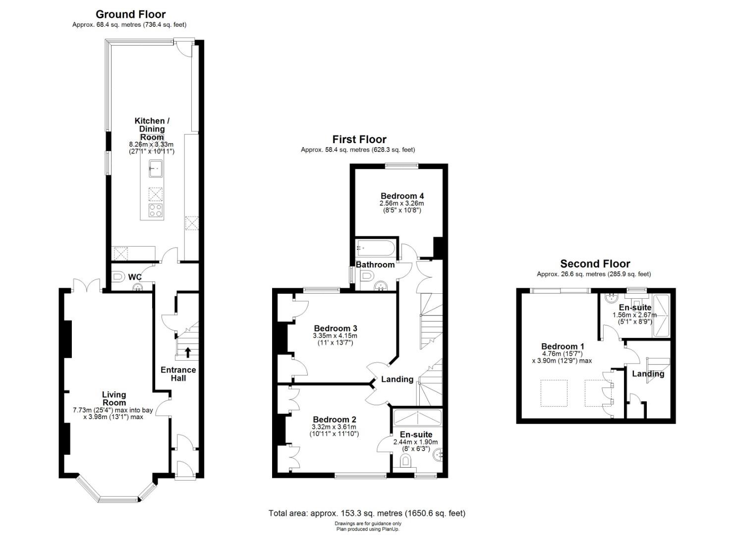
1195 sq. ft.
Property Details
Floorplans
Location
EPCs

Situated in the highly desirable area of Newnham, Cambridge, this elegant four-bedroom semi-detached home offers a perfect blend of character, space, and modern living. The property boasts high ceilings and large windows that enhance the sense of space and light throughout, while many original features add charm and character to the home. The property features four well-proportioned bedrooms, two bright and spacious reception rooms, a kitchen with integrated appliances, three modern bathrooms, and a convenient WC, making it ideal for families.

Outside, the property benefits from a charming courtyard garden, providing a peaceful outdoor space.

Newnham is known for its peaceful, village-like atmosphere while being within easy reach of the city Centre and easy access to the M11. The area offers excellent local amenities, highly regarded schools, and beautiful green spaces, including Lammas Land and Grantchester Meadows. Scenic walks along the River Cam and nearby cycling routes further enhance the appeal of this prime location.

Council Tax Band: G
EPC Rating: D
Minimum 12 Month Tenancy
Deposit: £3690
Holding Deposit: £390

Key Features
    Property Description
    Utilities, Bills and Payments

    All services to be arranged and paid for by the tenants.

    Broadband

    Standard/Cooper (ADSL) broadband is available at the property, please refer to Ofcom to check for supply coverage and speeds.

    Mobile Coverage

    Mobile provider EE, Three, O2 and Vodafone are likely to have limited coverage for voice and data, please refer to Ofcom for guidance on mobile availability in the area.

    White Goods

    washing machine, tumble dryer, fridge/freezer, oven, hob

    Parking

    On street resident parking

    Read more
    Hardwick Street, Cambridge
    28 Hardwick Street
    Cambridge
    CB3 9JA
    Hardwick Street, Cambridge
    Branch Details
    Commercial Team

    7 Dukes Court
    54-64 Newmarket Road
    Cambridge
    CB5 8DZ

    Share
    RAH Newsletter

    Stay 

    updated

    Sign up to our newsletter to receive the latest property and industry news direct to your inbox.
    Subscribe
    envelopephone-handsetmap-markermagnifierarrow-downarrow-right linkedin facebook pinterest youtube rss twitter instagram facebook-blank rss-blank linkedin-blank pinterest youtube twitter instagram