The property occupies a fine non-estate position, set back from the road and located right in the heart of this highly sought-after village. The current owners, over the years have transformed the house with a programme of expansion and periodic refurbishment, resulting in a beautifully presented and exceptionally well-proportioned house. The property is set within stunning gardens and grounds extending to approximately 0.25 acres with ample parking and double length garage.
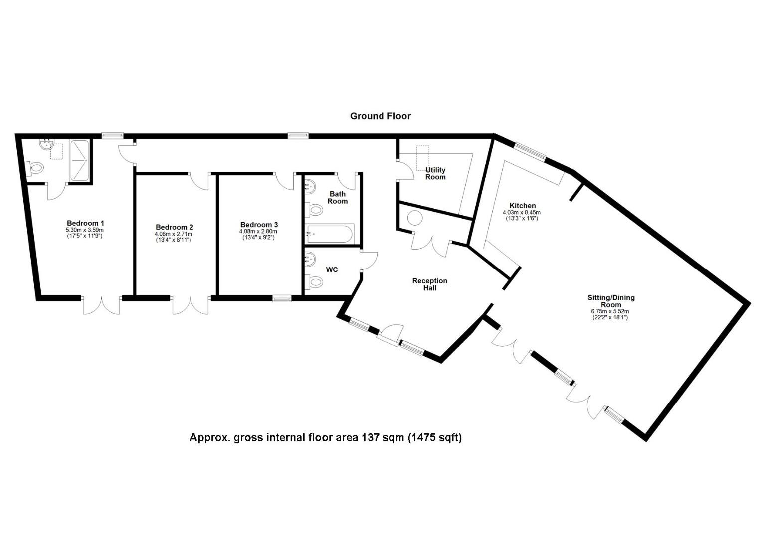
The accommodation comprises a welcoming and spacious reception hall with stairs to first floor accommodation, a large recess under the stairs accommodates a study area, Karndean flooring and a cloakroom/WC just off. There are two reception rooms including a dual aspect sitting room with feature fireplace and a dining/study with patio doors to the garden. The kitchen/breakfast/family room is the most recent extension and refurbishment with patio doors to the rear, window to the side and a large sky light ensuring maximum natural light within this fabulous family space. The kitchen is fitted with attractive cabinetry, ample fitted working surfaces with one and a half sink unit with mixer tap and drainer and a range of Neff appliances including a five ring gas hob, double oven, extractor, integrated fridge and dishwasher, all complimented by Karndean flooring. Just off is a handy utility room with door to garden and garage plus space for all the usual white goods.
Upstairs off the half galleried landing, are four good sized bedrooms with an en suite to the master bedroom and a family bathroom.
Outside, there is an expansive lawned front garden with flower and shrub border, a driveway providing parking for three to four cars and a double length garage with up and over door, power and light connected plus within the garage is a wall mounted Valiant oil fired central heating boiler. Gated access on both sides to the house leads to the rear garden which is laid to shaped and manicured lawns with well stocked flower and shrub borders and beds, a wide and varied selection of mature trees and bushes, a vegetable/herb/fruit garden, a timber garden store (formerly a chicken coop) and all enjoys excellent levels of privacy and seclusion.
Harlton is a conveniently located and popular village well placed for access to Cambridge and Royston. It has a community owned public house and a parish church. Local shopping is available at Haslingfield and Comberton. Primary schooling at Haslingfield with secondary schooling at Comberton Village College. The property is located close to the centre of the village. There is a bi-hourly bus service in the village.
Freehold
Mains services connected include: gas, electricity, water and drainage.
South Cambridgeshire District Council
Council tax band- F
Unless specifically mentioned in these particulars all fixtures and fittings are expressly excluded from the sale of the freehold interest.
Strictly by appointment through the vendor’s sole agents, Redmayne Arnold and Harris



