2 Lents Way is an exceptional family house located at the end of a peaceful and leafy cul-de-sac in Chesterton.
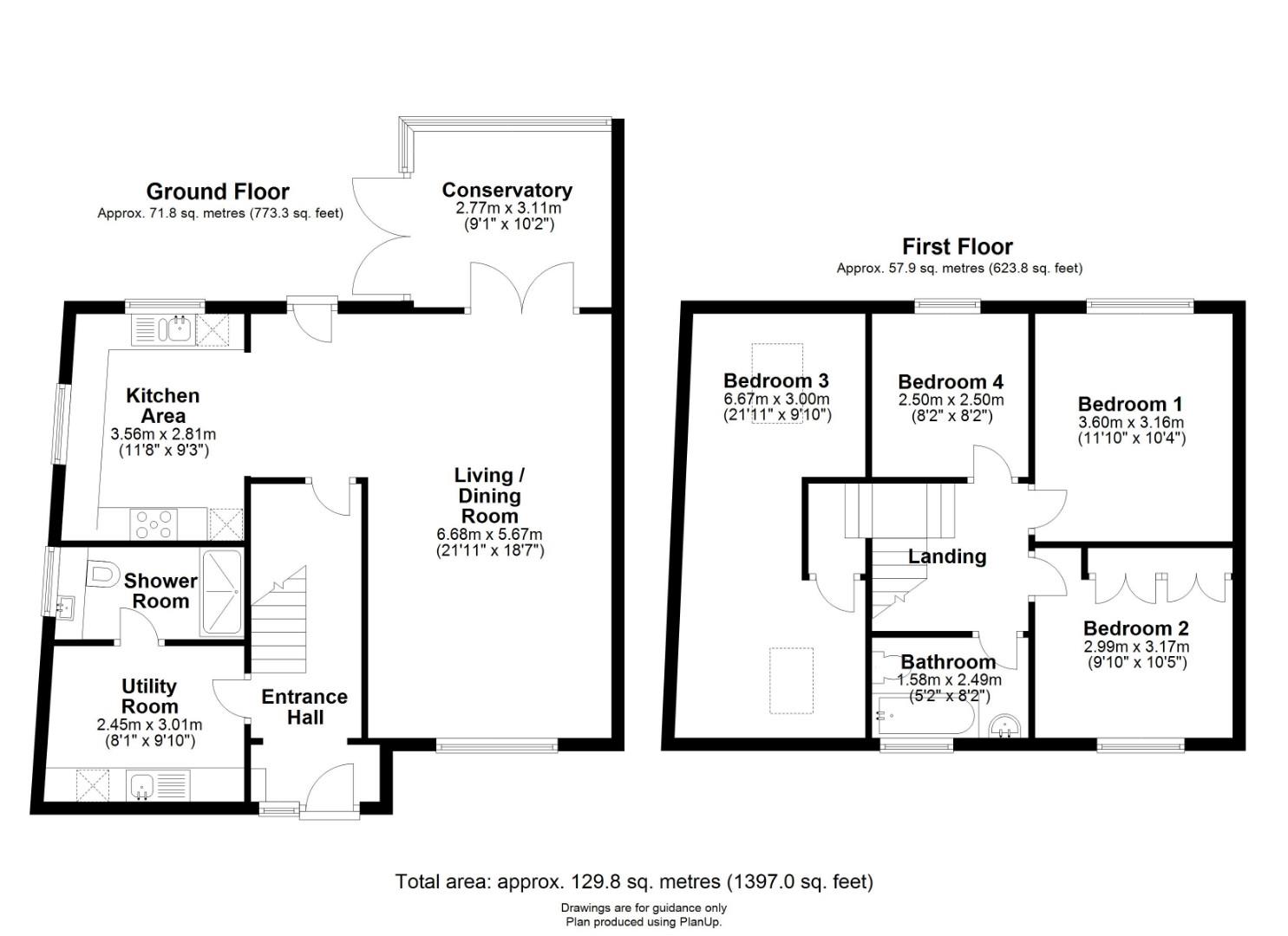
The property has been significantly improved, creatively extended and thoughtfully remodelled to offer impressive family accommodation over two light-filled floors extending to 1397 sqft. This broad, semi-detached home benefits further from full planning consent for a large rear extension (26/00627/HFUL).
The beautifully appointed accommodation with a superior contemporary finish, enhanced by lots of natural light, comprises a reception hall, utility room/study with an ensuite shower room, a bright and spacious sitting room with parquet flooring, which wraps around into a play area and dining space with conservatory off. A large, well-equipped and stylish modern kitchen offers an extensive range of matching cabinetry and drawers, ample working surfaces and a range of integrated appliances and benefits from a Quooker hot tap. There is separate access to the garden from the kitchen/dining area.
Upstairs, a spacious central landing leads to four spacious bedrooms and a refitted family bathroom suite with underfloor heating.
Outside, the property is set behind established frontage, which provides screening from the road and off-street parking.
Gated side access leads to a generous and mature rear garden with patio area and lawn with established trees and shrubs set to borders.
Lents Way forms part of an established residential area in East Chesterton, which is a sought-after suburb to the northeast of the city centre, close to the river Cam and within striking distance of Cambridge North Railway Station. A wide range of facilities are close by on Chesterton High Street and Cambridge North station is a short walk away. The Science Park, guided busway and city centre are within walking or cycling distance. The river Cam and the Chisholm Trail can be accessed across Five Trees, which is the field behind house making this an area for lovely for local walks. There is also a community garden.
Freehold
Main services connected include: water, electricity, gas and mains drainage.
Cambridge City Council.
Council Tax Band - D
Unless specifically mentioned in these particulars, all fixtures and fittings are expressly excluded from the sale of the freehold /leasehold interest.
Strictly by appointment through the vendor’s sole agents, Redmayne Arnold and Harris.



