The property enjoys a fine, non-estate position, set back and screened from the road, nested within mature private gardens and grounds to both the front and rear. There is ample parking located at the end of the rear garden with a detached double garage, which has been converted into a hobby room, which could easily be reverted back to a garage if required.
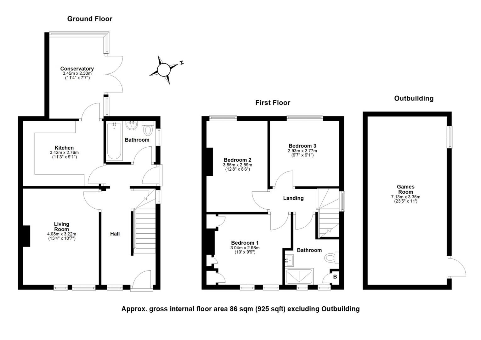
The accommodation comprises a welcoming reception hall with a staircase to the first floor accommodation and a refitted bathroom off an inner hallway, plus a large understairs storage cupboard with plumbing for a washing machine. The sitting room boasts a feature fireplace with an inset, cast iron woodburning stove. The kitchen is fitted with attractive cabinetry, ample fitted working surfaces with an inset one and a half sink unit with a mixer tap and drainer, four-ring gas hob, double oven, extractor and space for a fridge, freezer and a dishwasher. Just off the kitchen is a conservatory extension, ceramic tiled flooring and panoramic views over the garden.
Upstairs, the landing boasts solid oak flooring. There are three bedrooms and a luxury refitted shower room.
Outside, the front garden is laid to lawn with a paved patio, raised beds and a woodstore. Gated access leads to the rear garden, which again is predominantly laid to well-maintained lawns, well-stocked flower and shrub borders and beds, a generous paved patio, which is partially covered with a fitted seating area, wildlife pond, greenhouse, several timber garden sheds and the double garage, which has been converted to a hobby room with power and light connected. Gated access leads to the parking area to the rear.
Hardwick is an attractive village lying just 5 miles west of Cambridge. It is a village surrounded by open countryside where there are several golf courses and excellent walks nearby, including the well known Wimpole Way. There is also a cycle path from the village to Cambridge. It benefits from a convenience store, post office, a public house, a church and a well regarded primary school.
Hardwick is in the catchment for the Comberton and Cambourne Village Colleges and their sixth forms, both of which are Ofsted rated as 'outstanding'. Communications are excellent with easy access to the A428 and junction 13 of the M11 being just over 3 miles distant and a regular bus service running directly into Cambridge. The Cambridge Science Parks as well as the city centre are easily accessible. The village is now also served by super fast fibre optic broadband.
Freehold
Main services connected include: water, electricity, gas and mains drainage.
South Cambridgeshire District Council.
Council Tax Band - C
Unless specifically mentioned in these particulars, all fixtures and fittings are expressly excluded from the sale of the freehold interest.
Strictly by appointment through the vendor’s sole agents, Redmayne Arnold and Harris.



