Situated on the highly sought-after Mawson Road, this charming three-bedroom, Victorian mid-terrace offers an excellent blend of period character and modern living, having been extended in 2003 to create accommodation of 1085 sqft, with potential for enlargement (subject to planning), just a short distance from Cambridge city centre, the railway station, and a range of local amenities on Mill Road. The property is also situated within the catchment area for Parkside Community College, which is rated by Ofsted as 'outstanding'.
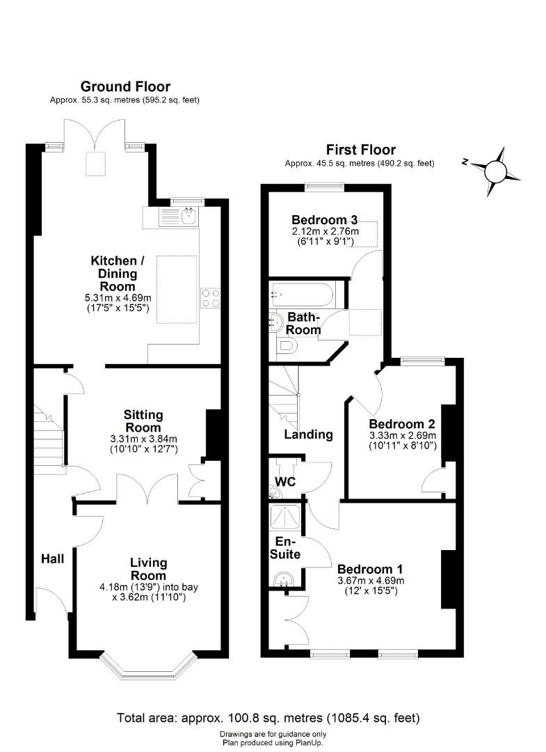
The property is set behind an attractive bay-fronted façade, inside, the ground floor provides well-balanced and versatile accommodation, including a bright bay-fronted living room to the front, a generous sitting room, and a spacious open-plan kitchen/dining room to the rear - ideal for both everyday living and entertaining. The kitchen area is thoughtfully arranged with ample worktops and storage space, integrated appliances with space for a fridge/freezer and benefits from direct access to the garden.
Upstairs, the first floor comprises three bedrooms, including a well-proportioned principal bedroom with ensuite facilities, a further double bedroom, and a single bedroom, which would also work well as a study or nursery. A family bathroom and an additional WC complete the first-floor accommodation.
Outside, the property enjoys a private rear garden, measuring circa 34.2 ft x 15.5 ft , the garden is mostly laid to lawn with patio area, shed and gated rear access. On street parking is available with residents' parking permits.
Mawson Road is in a popular and convenient location, situated off Mill Road between Glisson and Tenison Road, close to the city centre (Market Square is 1 mile), railway station (0.5 miles) and many of the facilities offered by the University.
There is plenty of local shopping and eateries available on Mill Road and Hills Road whilst the city centre is less than 1 mile away with its combination of ancient and modern buildings, winding lanes, excellent choice of schools and wide range of shopping facilities.
There are several excellent schools and nurseries available within walking distance, both state and independent. Most notably is the Ofsted rated 'outstanding', Parkside Community College, which is 0.5 miles away.
Freehold
Main services connected include: water, electricity, gas and mains drainage.
Cambridge City Council.
Council Tax Band - E
Unless specifically mentioned in these particulars, all fixtures and fittings are expressly excluded from the sale of the freehold /leasehold interest.
Strictly by appointment through the vendor’s sole agents, Redmayne Arnold and Harris.



