This attractive bay-fronted home has served as a wonderful family home over the last decade. The property was extended to the rear in 2004 and also benefits from a recently updated bathroom and kitchen. Windows, doors, fascias and gutters were also all replaced in 2016.
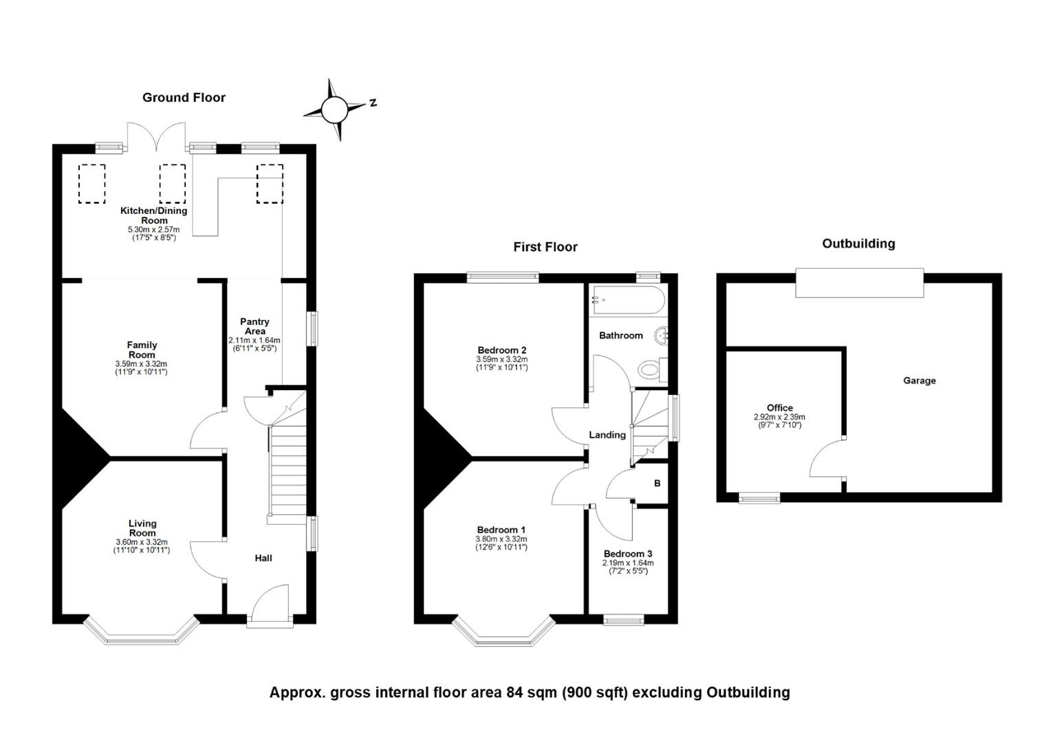
On the ground floor is a welcoming entrance hall with space for coats and footwear with stairs up to the first-floor. There is a bay-fronted sitting room with a feature fireplace, finished with original wood flooring. Of particular note is the property's impressive open-plan kitchen / breakfast room, which has a breakfast bar peninsula and adjoins a large dining room. The kitchen itself has been fitted with a stylish and bespoke range of units, boasts a Butler sink and various integrated Bosch appliances. The room benefits from an abundance of natural light, courtesy of three large Velux windows and French doors opening onto the rear garden.
Upstairs are three bedrooms, two of which are comfortable doubles and both have feature fireplaces. The bathroom has been refitted with a white suite, complemented by attractive tiling, inset spotlights and a heated towel rail. The landing provides access to a partially boarded loft with a pull-down ladder.
Outside the front of the property has a driveway and small open-plan garden, partially enclosed by a picket fence and mature hedgerows. The west-facing rear garden has a patio area, well-suited to alfresco dining in the warmer months. The remainder is laid to lawn and bordered with a variety of raised stocked sleeper beds and trees. There is also a large garage, which has shared rear access, and has been partially converted into a home office with power. An additional parking space can be found to the rear.
Meadowlands Road is conveniently positioned just off Newmarket Road and is ideally situated for access to the Cambridge Stations and the A14/M11 road networks. The property sits just a couple of miles from Cambridge City centre with its combination of ancient and modern buildings, winding lanes, excellent choice of schools and wide range of shopping facilities.
There are a range of local facilities nearby including a Tesco Superstore, gym and two out of town retail parks close-by, with the Grafton Centre, which has a multiplex cinema and restaurants just 1.9 miles away. Meadowlands Road is also a 10-minute walk from a one-stop convenience store, butchers, fish and chip shop, and a reputable NHS Health Centre.
The historical village of Fen Ditton is nearby and has three public houses, including two gastro pubs, with The Plough having lovely views over the river Cam. Cambridge North Station can also be reached within 10 minutes by bike via the The Chisholm Trail.
Freehold
Main services connected include: water, electricity, gas and mains drainage.
Cambridge City Council.
Council Tax Band - C
Unless specifically mentioned in these particulars, all fixtures and fittings are expressly excluded from the sale of the freehold interest.
Strictly by appointment through the vendor’s sole agents, Redmayne Arnold and Harris.



