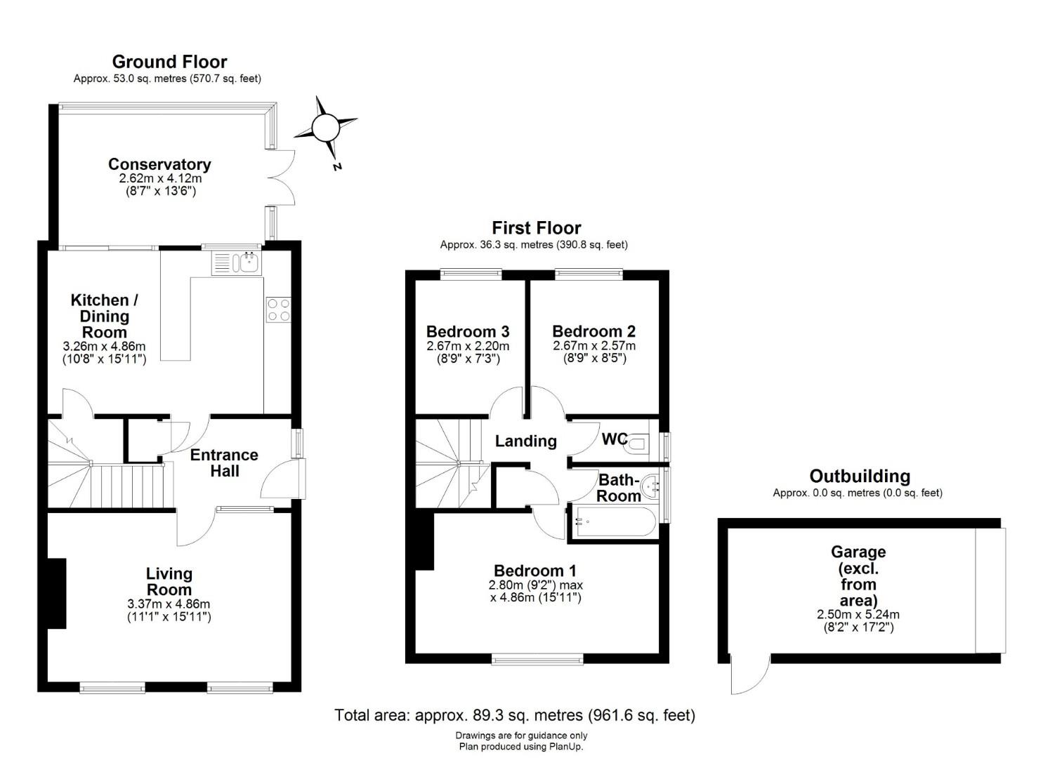
Constructed in 1973, this delightful semi-detached home measures 89.3 sqm / 961.6 sqft (excluding the garage) and provides accommodation over two floors.
To the ground floor, the property comprises of a generous entrance hall with a storage cupboard as well as stairs, which lead up to the first floor. The property has two reception rooms, a large sitting room to the front with two floor-to-ceiling windows drawing in large levels of natural light, and a conservatory off the kitchen diner, which overlooks the south facing rear garden. The open plan kitchen/diner will appeal to families who enjoy socialising. The kitchen offers a wide range of storage at both eye level and base level, space for white goods, generous levels of worktop space and an integrated gas hob and an electric oven.
To the first floor are three bedrooms, which includes a large master bedroom running the full width of the house. Completing the first floor is a separate WC and family bathroom with a panelled bath and a shower above.
Externally, the property occupies a good-sized plot measuring 0.08 acres. To the front, is a large lawn area with a pathway leading to the front door and one of two driveways providing off road parking. The rear garden of the property has a large patio area accessible off the conservatory and a raised lawn area with herbaceous borders. Accessible off the rear garden is the detached garage with further parking to the front.
Histon is widely acknowledged as being one of the most sought-after villages north of Cambridge. Its particularly convenient location just 3 miles from Cambridge city centre adds to its popularity and communications are first class, the A14 and M11 being within a few minutes’ drive. Histon is served by Cambridgeshire County Council's Guided Busway with an estimated journey time to the Science Park of approximately 3 minutes and is a 10-minute cycle. It is also conveniently located for Cambridge North railway station.
The village boasts many local facilities including excellent schooling for all ages from pre-school to sixth form, including the well regarded Impington Village College. Good local shopping is available in the village and there is a regular bus service to Cambridge. Girton Golf Club is also within a few minutes’ drive.
Freehold
Main services connected include: water, electricity, gas and mains drainage.
South Cambridgeshire District Council.
Council Tax Band - C
Unless specifically mentioned in these particulars, all fixtures and fittings are expressly excluded from the sale of the freehold interest.
Strictly by appointment through the vendor’s sole agents, Redmayne Arnold and Harris.
Part of the Greenleas Developement- there is a £60 a year service charge.



