This 1980’s mid-terrace town house has been significantly improved and remodelled to create an impressive open plan living/dining space, which connects to a recently installed modern kitchen and benefits from complete views of the established and colour themed garden.
The property occupies a privileged position along Parsonage Street, yards from Midsummer Common and scenic river walks in the historic city centre.
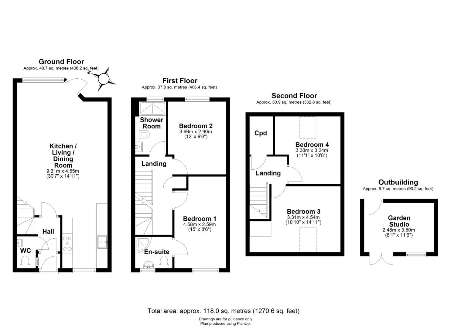
Upon entering the property, an enclosed entrance hall leads to a refitted WC and an open plan reception area. This light contemporary space benefits from a high degree of natural light and comprises of three areas. There is a well-equipped kitchen with stylish low-level handleless units and drawers, open wall-mounted units, working surfaces and a range of integrated appliances. A generous dining area with a feature glazed staircase divides the kitchen from a broad and comfortable sitting area. Floor to ceiling glazing allows completes views and access to the garden.
The upper floors provide flexible accommodation, which includes a first-floor principal bedroom suite, a separate modern shower room with a wash hand basin and WC, and three further double bedrooms.
Outside, there is a walled courtyard garden, which has a deep paved terrace leading to gravelled area with s variety of colourful plants and shrubs. A well-constructed and fully insulated home studio with power and lighting provides pedestrian access to a rear pathway leading to the allocated parking space. The property also qualifies for residents' permit parking.
Parsonage Street is a quiet, highly sought-after and convenient residential no-through road adjoining Midsummer Common, within easy walking distance of the historic city centre. The property also falls within the catchment for St Matthew’s Primary School and Parkside Community College, which have achieved Ofsted ratings of 'good' and 'outstanding', respectively. Local shopping 150 yards, city centre (Market Square) 0.5 miles, railway station 1.25 miles (Liverpool Street from 60 minutes, King's Cross from 49 minutes).
Freehold
Main services connected include: water, electricity, gas and mains drainage.
Cambridge City Council.
Council Tax Band - F
Unless specifically mentioned in these particulars, all fixtures and fittings are expressly excluded from the sale of the freehold interest.
Strictly by appointment through the vendor’s sole agents, Redmayne Arnold and Harris.



