22 Searle Street forms half of Pilgrim Cottages, a pair of attractive staggered terraced houses dating back to 1890 and is conveniently situated just north of the River Cam. The property is well-presented throughout and also benefits from a detached garage located at the foot of the garden, accessed via Hilda Street.
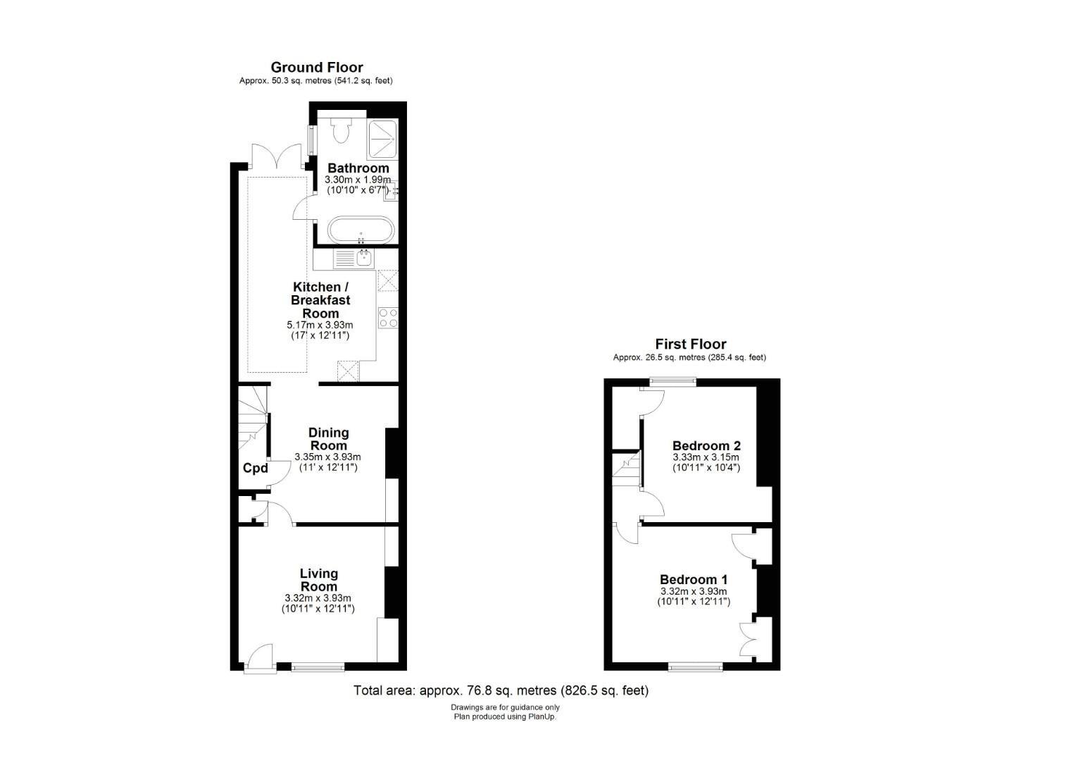
On the ground floor, a newly created entrance hall features Victorian-style corbels and provides access to the living room, which includes an inset coal-effect gas stove with a wood surround and fitted shelving either side. A snug/dining room has a useful under stairs storage cupboard and opens into the extended kitchen/dining room, which has an impressive, glazed roof and double doors opening onto the rear garden. With a range of fitted base and wall-mounted units, the kitchen has space for appliances and plumbing for a washing machine and a dishwasher. To the rear, there is a generous bathroom with a stylish bath, walk-in shower, floating wash basin with a vanity unit, WC and a heated towel rail.
On the first floor, there are two double bedrooms, the front benefitting from a feature fireplace with built-in wardrobes on either side.
Outside, there is a low-maintenance and private courtyard garden, leading to the detached garage, which includes an inspection pit and an electric garage door.
Searle Street forms part of a sought-after and charming residential area to the north of the River Cam and a stone’s throw from Alexandra Gardens. It is situated around 1 mile north of the city centre, which can be easily reached on foot or bicycle. Jesus Green and Midsummer Common are close by and there are a good range of local shopping facilities and independent cafés and restaurants both on Victoria Road and Mitcham’s Corner. Local schooling is available at St Luke's C of E Primary School and Chesterton Community College.
Freehold
Main services connected include: water, electricity, gas and mains drainage.
Cambridge City Council.
Council Tax Band - D
Unless specifically mentioned in these particulars, all fixtures and fittings are expressly excluded from the sale of the freehold /leasehold interest.
Strictly by appointment through the vendor’s sole agents, Redmayne Arnold and Harris.



