The property occupies a fine non-estate position, just a moments walk from the thriving village centre and main line train station. The current owners have greatly improved the house and enlarged it on the ground floor. The garage has been converted to a work shop that could easily be put back to a garage or indeed converted to an additional bedroom or reception room. Works to the roof have just been carried out to include removal and cleaning of all tiles, installation of a new roof membrane and new battens, together with replacement guttering and fascia boards; carrying a 20-year warranty.
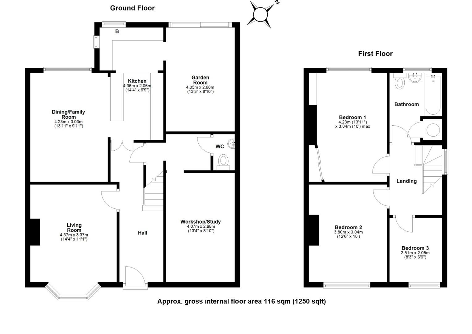
The accommodation comprises a welcoming reception hall with stairs to first floor accommodation. An inner hallway leads to a cloakroom/ WC and the work/hobby room( formerly garage). The bay windowed sitting room boasts a feature fireplace and original wood strip flooring. The kitchen is fitted with solid wood cabinetry and working surfaces with inset one and a half sink unit with mixer tap and drainer, four ring ceramic hob, oven, extractor, integrated under-counter fridge and a wall mounted gas fired central heating boiler. The kitchen opens to a dining/family room on one side and a lovely garden room on the other, both with views over the garden.
Upstairs, off the landing are three bedrooms and a shower room.
Outside, the property is set back from the road and screened by hedging with a gravel driveway accommodating two to three vehicles. The rear garden is laid mainly to lawn with flower and shrub borders and beds, a selection of specimen and fruit bearing trees, generous paved patio, two timber sheds, gated side access and all enjoys good levels of privacy.
Great Shelford is a sought-after village just to the south east of the city, with an excellent range of facilities including primary school, health centre, recreation ground, library, church and a range of shops including supermarket, bakery, chemist and butcher.
The M11, Shelford railway station and Addenbrooke’s / Biomedical Campus are easily accessible.
Freehold
Mains services connected include: gas, electricity, water and mains drainage.
South Cambridgeshire District Council
Council tax band- D
Unless specifically mentioned in these particulars all fixtures and fittings are expressly excluded from the sale of the freehold interest.
Strictly by appointment through the vendor’s sole agents, Redmayne Arnold and Harris



