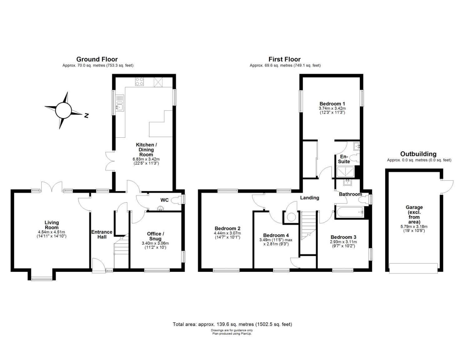
Having been constructed in 2018, this detached family home measures 1502 Sqft / 139 Sqm and provides generous living accommodation over two levels. To the ground floor is a spacious entrance hall which leads through to two generous reception rooms including a double aspect living room with French doors opening into the rear garden and a home office/snug. The hub of the house is the large kitchen/dining area with doors opening into the rear garden, copious amounts of storage and fitted appliances which includes a gas hob, a dishwasher, a washing machine, a double oven and a fridge freezer. Completing the ground floor is a WC accessible off the entrance hall and a large storage cupboard beneath the stairs. To the first floor are four double bedrooms and two bathrooms which includes an enviable master bedroom with a dressing area and en-suite shower room.
Externally – The property has driveway parking to the rear of the property which in turn leads up to a detached brick-built garage with up and over door and pitched roof. The rear garden has been conveniently landscaped and benefits from slate paving ideal for al-fresco dining, an astro turf laid centre and passageway to the side, ideal for storing the bins/bikes. Where the property occupies a corner plot, there is an additional parcel of land to the side of the property which the current owners have laid to composite decking and which enjoys an aspect facing towards communal land.
Northstowe is a growing new development with superb access links to Cambridge and beyond, via the nearby A14, M11 and A1. It also benefits from access to the Guided Bus route which provides fast access into Cambridge, Cambridge North train station, the Science Park and Addenbrookes hospital.
For recreation, Northstowe has several parks and outdoor spaces to enjoy walking and cycling. There is a children's play area, an outdoor basketball court and also a community cafe at Wing, Northstowe’s community venue. The town has both a Primary School and Secondary School.
Freehold
Mains services connected include: gas, electricity, water and mains drainage.
South Cambridgeshire District Council
Council tax band - E
Unless specifically mentioned in these particulars all fixtures and fittings are expressly excluded from the sale of the freehold interest.
Strictly by appointment through the vendor’s sole agents, Redmayne Arnold and Harris



