This charming Victorian house has been extended and greatly improved in recent years and benefits from well-arranged, bright and airy accommodation, which has been well-adapted to modern living but still boasts period features. The property is conveniently located on a quiet, no-through road to the east of the city centre, very well-placed for access to the railway station and within catchment for St Matthew's Primary School and Parkside Community College.
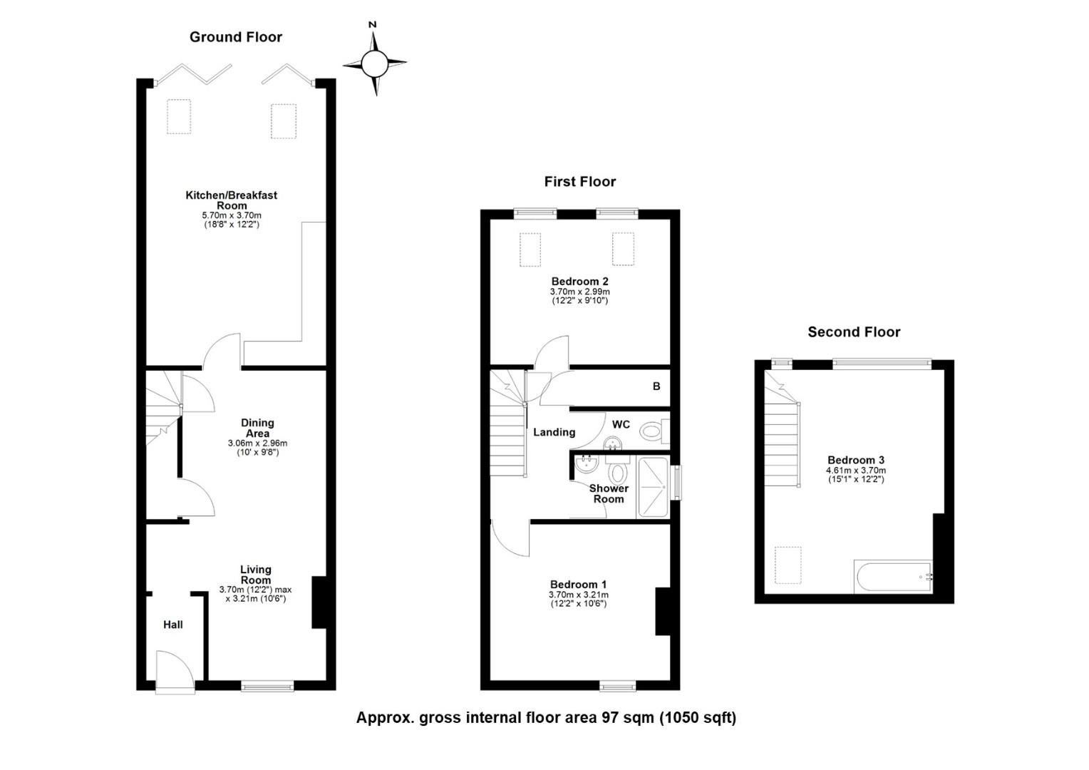
An entrance porch opens into the spacious living/dining room, which has a dual aspect, wooden floorboards, feature wood-burning stove with fitted shelving either side, and stairs to the first floor with storage cupboard under. At the rear, there is a superbly extended kitchen/dining room, which enjoys a wealth of light, courtesy of roof lights and bi-folding doors providing pleasant views of and access to the rear garden. The kitchen is well-equipped with a range of fitted units, an integrated electric oven with a gas hob and an extractor hood over, plumbing for a washing machine and space for a fridge/freezer.
On the first floor, there are two bedrooms, both of which are double in size. There is a well-appointed shower room with three piece suite comprising a shower, a wash basin and a WC. There is a further WC with a wash basin.
On the second (top) floor is the impressive master bedroom, which has the unusual benefit of a panelled bath.
Outside, a gated passageway provides access to the delightful rear garden, which is mainly enclosed by fencing and includes a lawn, a variety of trees and shrubs, and a patio area well-suited to alfresco dining.
Stone Terrace is at the end of Stone Street, which is a no-through road in a particularly desirable neighbourhood in the highly regarded Petersfield ward. It is conveniently situated off Ainsworth Street, around a mile east of the city centre with its combination of ancient and modern buildings, winding lanes, excellent choice of schools and wide range of shopping facilities.
The property is a 10-minute walk from Cambridge railway station with direct links to London. Mill Road, The Grafton, Beehive Shopping Centres and Cambridge Retail Park are also a short walk away. The city centre is reached by foot in just 20 minutes.
Schooling is excellent and the area falls within the catchment of St Matthew's Primary School, secondary provision is at Parkside Community College both of which are Ofsted rated as 'outstanding'.
Freehold
Main services connected include: water, electricity, gas and mains drainage.
Cambridge City Council.
Council Tax Band - C
Unless specifically mentioned in these particulars, all fixtures and fittings are expressly excluded from the sale of the freehold interest.
Strictly by appointment through the vendor’s sole agents, Redmayne Arnold and Harris.



