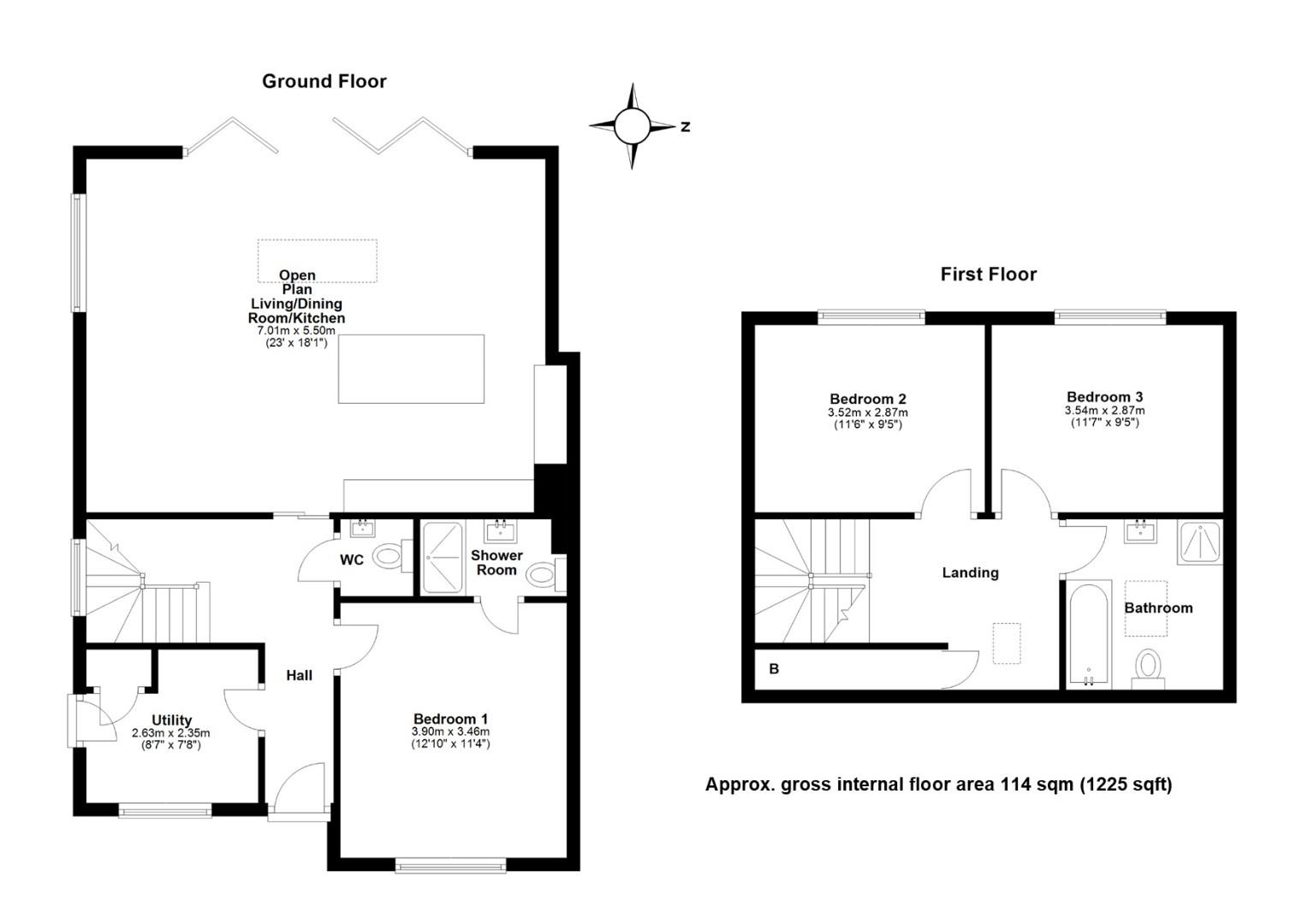
The property enjoys a wonderful position just a short walk from the main line train station and thriving village centre. The property has been subject to a programme of expansion and full refurbishment doubling the size of the original property and boasting beautifully presented accommodation and all finished to the highest possible standard, extending to 1225 sqft and arranged over two floors.
The accommodation comprises a welcoming reception hall with bespoke staircase to first floor accommodation, generous recess under and a cloakroom/WC just off. There is a study with utility cupboard housing the usual white goods and a double bedroom with luxury en suite shower room. The heart of this home is the fabulous open planned kitchen/dining/sitting room which boasts a large skylight and bi-fold doors providing access to the garden. The kitchen area is fitted with attractive, contemporary cabinetry including deep pan drawers, pull out larders, attractive work surfaces with inset one and a half sink unit with bevelled drainer and a matching central preparation island/breakfast bar. There are a range of integral appliances which include an induction hob with integrated extractor, double oven, fridge/freezer and dishwasher.
Upstairs, there is a generous landing with a study area, eaves storage housing the new wall mounted central heating boiler plus there are two large double bedrooms and a luxury bathroom which boasts both a bath tub and a shower cubicle.
Outside, the front garden is laid to lawn with flower and shrub borders. To the side is a block paved driveway which provides off road parking for up to three cars. Gated access leads to the rear garden which is mainly laid to lawn with flower and shrub borders, a selection of specimen trees and hedging and a generous decked terrace, ideal for alfresco dining and a timber garden store. All enjoys excellent levels of privacy.
Great Shelford is a sought-after village just to the south-east of the city, with an excellent range of facilities including primary school, health centre, recreation ground, library, church and a range of shops including supermarket, bakery, chemist and butcher.
The M11, Shelford railway station and Addenbrooke’s / Biomedical Campus are easily accessible.
Freehold
Mains services connected. include: gas, electricity, water and mains drainage.
South Cambridgeshire District Council
Council tax band-D
Unless specifically mentioned in these particulars all fixtures and fittings are expressly excluded from the sale of the freehold interest.
Strictly by appointment through the vendor’s sole agents, Redmayne Arnold and Harris



